Maison neuve à
Givrand
(85800) Référence :
NR2313195_4
Prix du projet : Maison avec Terrain
prix 217 900 €
- 2 pièces
- 3 chambres
- Surface maison 79 m2
****PROCHE DU BOURG ET A SEULEMENT QUELQUES MINUTES DE LA MER*****
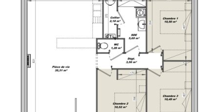
VENTE : maison de 2 pièces (79 m²) à Givrand
MAISON 2 PIÈCES NEUVE
À vendre : sur le littoral atlantique, venez découvrir cette maison de 2 pièces de plain-pied de 79 m² à Givrand (85800). Elle comporte trois chambres, une cuisine et une salle de bains.
Le terrain de la propriété est de 380 m².
Cette maison est neuve.
L'École Primaire Privée la Fontaine se trouve à moins de 10 minutes à pied. Niveau transports, il y a les gares Saint-Gilles-Croix-de-Vie et Saint-Hilaire-de-Riez à moins de 10 minutes en voiture. On trouve une boulangerie et un commerce à quelques minutes à peine.
Elle est à vendre pour la somme de 217 900 €.
Contactez notre agence (Nicolas RISSELIN : 06-80-33-03-82) pour plus d'informations sur cette maison.
****PROCHE DU BOURG ET A SEULEMENT QUELQUES MINUTES DE LA MER*****
Mentions légales
Terrain proposé par un partenaire foncier selon disponibilités et autorisation de publicité au prix de 84 000 €. Hors droit d'enregistrement et frais de notaire. Maison proposée, avec un contrat de construction de maison individuelle, dans le cadre de la loi du 19/12/1990, au prix de 133 900 € (Hors branchements et raccordements, papiers peints, peintures, revêtement de sol dans les chambres, qui sont chiffrés dans les travaux qui restent à charge du client. Tarif modifiable sans préavis). Étiquette énergie : A. Différents modèles disponibles pour ce terrain. Assurances et garanties du constructeur comprises (RC professionnelle, décennale, dommage ouvrage).Agence Logis du Marais Poitevin de Saint-Gilles-Croix-de-Vie (85800)
- Téléphone :
- 02 51 55 34 29
- Adressse :
- 5 rue Gautté
85800 Saint-Gilles-Croix-de-Vie, France
