Maison neuve à
Givrand
(85800) Référence :
NR2313195_1
Prix du projet : Maison avec Terrain
prix 189 900 €
- 2 pièces
- 1 chambre
- Surface maison 50 m2
****PROCHE DU BOURG ET A SEULEMENT QUELQUES MINUTES DE LA MER*****
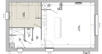
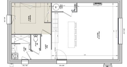
Maison de 2 pièces (50 m²) en vente à Givrand
MAISON 2 PIÈCES NEUVE
À vendre à 4 km de l'océan Atlantique, nous sommes ravis de vous présenter à Givrand (85800), cette maison de 2 pièces de plain-pied de 50 m² et de 380 m² de terrain. Elle dispose d'une chambre, d'une cuisine et d'une salle de bains.
La maison est neuve.
Il y a l'École Primaire Privée la Fontaine à moins de 10 minutes à pied. Niveau transports, on trouve deux gares (Saint-Gilles-Croix-de-Vie et Saint-Hilaire-de-Riez) à moins de 10 minutes en voiture. Il y a une boulangerie et un commerce à proximité.
Elle est à vendre pour la somme de 189 900 €.
Contactez Nicolas RISSELIN (06-80-33-03-82) pour plus d'informations sur cette maison. Faites de vos projets immobiliers une réalité avec LMP Constructeur Saint-Gilles-Croix-de-Vie.
****PROCHE DU BOURG ET A SEULEMENT QUELQUES MINUTES DE LA MER*****
Mentions légales
Terrain proposé par un partenaire foncier selon disponibilités et autorisation de publicité au prix de 84 000 €. Hors droit d'enregistrement et frais de notaire. Maison proposée, avec un contrat de construction de maison individuelle, dans le cadre de la loi du 19/12/1990, au prix de 105 900 € (Hors branchements et raccordements, papiers peints, peintures, revêtement de sol dans les chambres, qui sont chiffrés dans les travaux qui restent à charge du client. Tarif modifiable sans préavis). Étiquette énergie : A. Différents modèles disponibles pour ce terrain. Assurances et garanties du constructeur comprises (RC professionnelle, décennale, dommage ouvrage).Agence Logis du Marais Poitevin de Saint-Gilles-Croix-de-Vie (85800)
- Téléphone :
- 02 51 55 34 29
- Adressse :
- 5 rue Gautté
85800 Saint-Gilles-Croix-de-Vie, France
