Maison neuve à
Givrand
(85800) Référence :
TM2301465_1
Prix du projet : Maison avec Terrain
prix 308 000 €
- 3 pièces
- 2 chambres
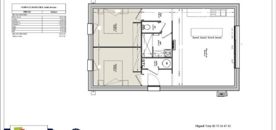
- Surface maison 82 m2
Givrand : maison T3 (82 m²) en vente
IDÉALEMENT SITUÉE - MAISON 3 PIÈCES NEUVE
En vente : localisée à 4 km de la côte atlantique, idéalement située dans Givrand (85800), notre agence LMP Constructeur Challans est ravie de vous proposer cette maison de 3 pièces de plain-pied de 82 m².
Elle propose deux chambres, une cuisine et une salle de bains. La maison est neuve.
Le terrain du bien s'étend sur 520 m².
Cette maison se situe dans un secteur prisé. Il y a l'École Primaire Privée la Fontaine à moins de 10 minutes à pied. Niveau transports en commun, on trouve deux gares (Saint-Gilles-Croix-de-Vie et Saint-Hilaire-de-Riez) à moins de 10 minutes en voiture. Il y a une boulangerie et un commerce dans les environs.
Elle est proposée à l'achat pour 308 000 €.
Contactez notre constructeur (MIGAULT Tony : 06-73-54-47-45) pour toute question sur la maison. Donnez vie à vos projets immobiliers avec LMP Constructeur Challans.
Mentions légales
Terrain proposé par un partenaire foncier selon disponibilités et autorisation de publicité au prix de 143 500 €. Hors droit d'enregistrement et frais de notaire. Maison proposée, avec un contrat de construction de maison individuelle, dans le cadre de la loi du 19/12/1990, au prix de 164 500 € (Hors branchements et raccordements, papiers peints, peintures, revêtement de sol dans les chambres, qui sont chiffrés dans les travaux qui restent à charge du client. Tarif modifiable sans préavis). Étiquette énergie : A. Différents modèles disponibles pour ce terrain. Assurances et garanties du constructeur comprises (RC professionnelle, décennale, dommage ouvrage).Agence Logis du Marais Poitevin de Challans (85300)
- Téléphone :
- 02 51 55 17 74
- Adressse :
- 4 Place du Champ de Foire
85300 Challans, France
