Maison neuve à
Givrand
(85800) Référence :
NR2298873_3
Prix du projet : Maison avec Terrain
prix 214 900 €
- 2 pièces
- 3 chambres
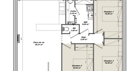
- Surface maison 79 m2
***PROCHE DE ST GILLES CROIX DE VIE ET DE LA MER****
VENTE d'une maison de 2 pièces (79 m²) à Givrand
EMPLACEMENT PRIVILÉGIÉ - MAISON 2 PIÈCES NEUVE
En vente : située sur la côte atlantique, nous sommes heureux de vous proposer cette maison de 2 pièces de plain-pied de 79 m² bénéficiant d'un emplacement privilégié dans Givrand (85800). Son intérieur compte trois chambres, une cuisine et une salle de bains.
Le terrain du bien est de 301 m².
La maison est neuve.
Cette maison se situe dans un quartier prisé. L'École Primaire Privée la Fontaine se trouve à moins de 10 minutes à pied. Niveau transports en commun, il y a deux gares (Saint-Gilles-Croix-de-Vie et Saint-Hilaire-de-Riez) à moins de 10 minutes en voiture. On trouve une boulangerie et un commerce à proximité du logement.
Elle est à vendre pour la somme de 214 900 €.
Contactez notre agence (RISSELIN Nicolas : 06-80-33-03-82) pour toute information sur la maison.
***PROCHE DE ST GILLES CROIX DE VIE ET DE LA MER****
Mentions légales
Terrain proposé par un partenaire foncier selon disponibilités et autorisation de publicité au prix de 84 000 €. Hors droit d'enregistrement et frais de notaire. Maison proposée, avec un contrat de construction de maison individuelle, dans le cadre de la loi du 19/12/1990, au prix de 130 900 € (Hors branchements et raccordements, papiers peints, peintures, revêtement de sol dans les chambres, qui sont chiffrés dans les travaux qui restent à charge du client. Tarif modifiable sans préavis). Étiquette énergie : A. Différents modèles disponibles pour ce terrain. Assurances et garanties du constructeur comprises (RC professionnelle, décennale, dommage ouvrage).Agence Logis du Marais Poitevin de Saint-Gilles-Croix-de-Vie (85800)
- Téléphone :
- 02 51 55 34 29
- Adressse :
- 5 rue Gautté
85800 Saint-Gilles-Croix-de-Vie, France
