Maison neuve à
Givrand (85800) Référence : NR2298873_1

Prix du projet : Maison avec Terrain

prix 194 900 €

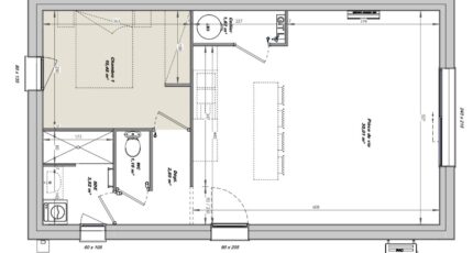
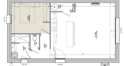
  • 2 pièces
  • 1 chambre
  • Surface maison 50 m2

***PROCHE DE ST GILLES CROIX DE VIE ET DE LA MER****

Maison de 2 pièces (50 m²) à vendre à Givrand
EMPLACEMENT PRIVILÉGIÉ - MAISON 2 PIÈCES NEUVE
Sur la côte atlantique, découvrez cette maison de 2 pièces de plain-pied de 50 m² et de 301 m² de terrain bénéficiant d'un emplacement privilégié dans Givrand (85800).
Son intérieur inclut une chambre, une cuisine et une salle de bains. Cette maison est neuve.
Le bien se trouve dans un secteur attractif. L'École Primaire Privée la Fontaine est implantée à moins de 10 minutes à pied. Côté transports en commun, il y a deux gares (Saint-Gilles-Croix-de-Vie et Saint-Hilaire-de-Riez) à moins de 10 minutes en voiture. On trouve une boulangerie et un commerce à proximité de la maison.
Il est proposé à l'achat pour 194 900 €.
Contactez Nicolas RISSELIN (tél : 06-80-33-03-82) pour tout renseignement sur la maison, sur les démarches à suivre ou sur les modalités de vente.


***PROCHE DE ST GILLES CROIX DE VIE ET DE LA MER****

Mentions légales

Terrain proposé par un partenaire foncier selon disponibilités et autorisation de publicité au prix de 84 000 €. Hors droit d'enregistrement et frais de notaire. Maison proposée, avec un contrat de construction de maison individuelle, dans le cadre de la loi du 19/12/1990, au prix de 110 900 € (Hors branchements et raccordements, papiers peints, peintures, revêtement de sol dans les chambres, qui sont chiffrés dans les travaux qui restent à charge du client. Tarif modifiable sans préavis). Étiquette énergie : A. Différents modèles disponibles pour ce terrain. Assurances et garanties du constructeur comprises (RC professionnelle, décennale, dommage ouvrage).

Contactez l'agence de Saint-Gilles-Croix-de-Vie

02 51 55 34 29

    * Champs obligatoires

    Vos informations sont traitées par HEXAOM et transmises à un conseiller commercial qui vous contactera afin de répondre à votre demande. Les plans et images présentés sur notre site sont la propriété d’HEXAOM et ne peuvent pas être reproduits sans son accord. Pour retrouver notre politique de protection des données personnelles et exercer vos droits conformément à la « loi informatique et liberté » cliquez-ici.