Maison neuve à
Commequiers
(85220) Référence :
NR2401473_4
Prix du projet : Maison avec Terrain
prix 425 900 €
- 3 pièces
- 3 chambres
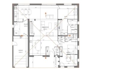
- Surface maison 165 m2
Commequiers : maison T3 (165 m²) en vente
EMPLACEMENT PRIVILÉGIÉ - MAISON 3 PIÈCES NEUVE
À 12 km de la côte atlantique, venez découvrir en vente, bénéficiant d'un emplacement privilégié dans Commequiers (85220), cette maison de 3 pièces de plain-pied de 165 m² et de 449 m² de terrain. Elle offre trois chambres, une cuisine et une salle de bains.
Cette maison est neuve.
La maison est située dans un secteur prisé. L'École Primaire Publique Robert Doisneau et l'École Primaire Privée Mixte Saint Pierre se trouvent à moins de 10 minutes à pied. Côté transports en commun, il y a la gare Challans à moins de 10 minutes en voiture. On trouve un tennis, deux commerces, une boulangerie, un supermarché et une poissonnerie dans les environs.
Elle est à vendre pour la somme de 425 900 €.
Contactez notre agence (RISSELIN Nicolas : 06-80-33-03-82) pour plus de renseignements sur la maison. Faites de vos projets immobiliers une réalité avec LMP Constructeur Saint-Gilles-Croix-de-Vie.
Mentions légales
Terrain proposé par un partenaire foncier selon disponibilités et autorisation de publicité au prix de 67 501 €. Hors droit d'enregistrement et frais de notaire. Terrain + Maison proposés au prix de 425 900 € (Hors branchements et raccordements, papiers peints, peintures, revêtement de sol dans les chambres. Tarif modifiable sans préavis). Etiquette énergie : A. Différents modèles disponibles pour ce terrain. Assurances et garanties du constructeur (RC professionnelle, décennale, dommage ouvrage, garantie de remboursement de l'acompte, livraison à prix et délai convenu) : https://www.lmp-constructeur.com/mentions-legales/.Agence Logis du Marais Poitevin de Saint-Gilles-Croix-de-Vie (85800)
- Téléphone :
- 02 51 55 34 29
- Adressse :
- 5 rue Gautté
85800 Saint-Gilles-Croix-de-Vie, France
