Maison neuve à
Commequiers
(85220) Référence :
NR2401473_1
Prix du projet : Maison avec Terrain
prix 167 900 €
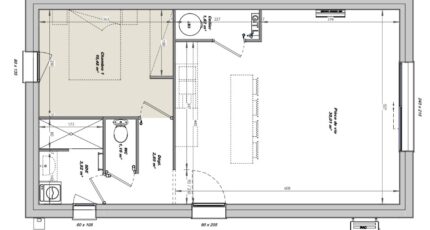
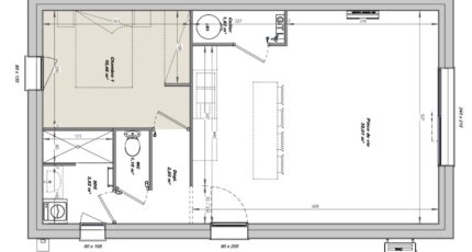
- 2 pièces
- 1 chambre
- Surface maison 50 m2
Maison de 2 pièces (50 m²) à vendre à Commequiers
EMPLACEMENT PRIVILÉGIÉ - MAISON 2 PIÈCES NEUVE
À vendre à 12 km de l'océan Atlantique, LMP Constructeur Saint-Gilles-Croix-de-Vie vous présente cette maison de 2 pièces de plain-pied de 50 m² bénéficiant d'un emplacement privilégié dans Commequiers (85220). Elle est composée d'une chambre, d'une cuisine et d'une salle de bains.
Le terrain de la propriété s'étend sur 449 m².
Cette maison est neuve.
Cette maison se trouve dans un secteur attractif. L'École Primaire Publique Robert Doisneau et l'École Primaire Privée Mixte Saint Pierre sont implantées à moins de 10 minutes à pied. Côté transports, il y a la gare Challans à moins de 10 minutes en voiture. On trouve un tennis, deux commerces, une boulangerie, un supermarché et une poissonnerie dans les environs.
Son prix de vente est de 167 900 €.
Contactez Nicolas RISSELIN (tél : 06-80-33-03-82) pour toute question sur la propriété. LMP Constructeur Saint-Gilles-Croix-de-Vie vous accompagne dans tous vos projets immobiliers et à toutes les étapes de l'achat.
Mentions légales
Terrain proposé par un partenaire foncier selon disponibilités et autorisation de publicité au prix de 67 501 €. Hors droit d'enregistrement et frais de notaire. Terrain + Maison proposés au prix de 167 900 € (Hors branchements et raccordements, papiers peints, peintures, revêtement de sol dans les chambres. Tarif modifiable sans préavis). Etiquette énergie : A. Différents modèles disponibles pour ce terrain. Assurances et garanties du constructeur (RC professionnelle, décennale, dommage ouvrage, garantie de remboursement de l'acompte, livraison à prix et délai convenu) : https://www.lmp-constructeur.com/mentions-legales/.Agence Logis du Marais Poitevin de Saint-Gilles-Croix-de-Vie (85800)
- Téléphone :
- 02 51 55 34 29
- Adressse :
- 5 rue Gautté
85800 Saint-Gilles-Croix-de-Vie, France
