Maison neuve à
Commequiers
(85220) Référence :
NR2366288_4
Prix du projet : Maison avec Terrain
prix 212 900 €
- 2 pièces
- 3 chambres
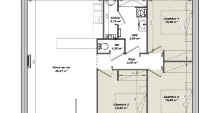
- Surface maison 79 m2
***** AU CENTRE DE COMMEQUIERS COMMERCES ET COMMODITES A VOS PEIDS *****
VENTE : maison F2 (79 m²) à Commequiers
QUARTIER RECHERCHÉ - MAISON 2 PIÈCES NEUVE
En vente : située à 12 km de l'océan Atlantique, construite dans un quartier attractif de Commequiers (85220), LMP Constructeur Saint-Gilles-Croix-de-Vie vous présente cette maison de 2 pièces de plain-pied de 79 m². Son intérieur comporte trois chambres, une cuisine et une salle de bains.
Le terrain du bien est de 499 m².
Cette maison est neuve.
Cette maison est située dans un secteur recherché. L'École Primaire Publique Robert Doisneau et l'École Primaire Privée Mixte Saint Pierre sont implantées à moins de 10 minutes à pied. Niveau transports en commun, on trouve la gare Challans à moins de 10 minutes en voiture. Il y a un tennis, deux commerces, une boulangerie, un supermarché et une poissonnerie dans les environs.
Son prix de vente est de 212 900 €.
N'hésitez pas à prendre contact avec Nicolas RISSELIN (tél : 06-80-33-03-82) pour toute question sur la maison. LMP Constructeur Saint-Gilles-Croix-de-Vie est là pour vous accompagner à toutes les étapes de l'achat.
***** AU CENTRE DE COMMEQUIERS COMMERCES ET COMMODITES A VOS PEIDS *****
Mentions légales
Terrain proposé par un partenaire foncier selon disponibilités et autorisation de publicité au prix de 78 500 €. Hors droit d'enregistrement et frais de notaire. Terrain + Maison proposés au prix de 134 400 € (Hors branchements et raccordements, papiers peints, peintures, revêtement de sol dans les chambres. Tarif modifiable sans préavis). Etiquette énergie : A. Différents modèles disponibles pour ce terrain. Assurances et garanties du constructeur (RC professionnelle, décennale, dommage ouvrage, garantie de remboursement de l'acompte, livraison à prix et délai convenu) : https://www.lmp-constructeur.com/mentions-legales/.Agence Logis du Marais Poitevin de Saint-Gilles-Croix-de-Vie (85800)
- Téléphone :
- 02 51 55 34 29
- Adressse :
- 5 rue Gautté
85800 Saint-Gilles-Croix-de-Vie, France
