Maison neuve à
Commequiers
(85220) Référence :
NR2366288_2
Prix du projet : Maison avec Terrain
prix 196 900 €
- 2 pièces
- 2 chambres
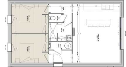
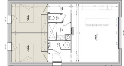
- Surface maison 61 m2
***** AU CENTRE DE COMMEQUIERS COMMERCES ET COMMODITES A VOS PEIDS *****
VENTE d'une maison de 2 pièces (61 m²) à Commequiers
QUARTIER RECHERCHÉ - MAISON 2 PIÈCES NEUVE
En vente : localisée à 12 km de l'océan Atlantique, nichée dans un quartier convoité de Commequiers (85220), ayez le coup de coeur pour cette maison de 2 pièces de plain-pied de 61 m² et de 499 m² de terrain. Son intérieur propose deux chambres, une cuisine et une salle de bains.
La maison est neuve.
La maison se situe dans un secteur prisé. Il y a l'École Primaire Publique Robert Doisneau et l'École Primaire Privée Mixte Saint Pierre à moins de 10 minutes à pied. Côté transports, on trouve la gare Challans à moins de 10 minutes en voiture. Il y a un tennis, deux commerces, une boulangerie, un supermarché et une poissonnerie dans les environs.
Elle est à vendre pour la somme de 196 900 €.
Contactez Nicolas RISSELIN (tél : 06-80-33-03-82) pour toute information sur la propriété ou sur les démarches à suivre. LMP Constructeur Saint-Gilles-Croix-de-Vie vous accompagne à toutes les étapes de l'achat et dans tous vos projets immobiliers.
***** AU CENTRE DE COMMEQUIERS COMMERCES ET COMMODITES A VOS PEIDS *****
Mentions légales
Terrain proposé par un partenaire foncier selon disponibilités et autorisation de publicité au prix de 78 500 €. Hors droit d'enregistrement et frais de notaire. Terrain + Maison proposés au prix de 118 400 € (Hors branchements et raccordements, papiers peints, peintures, revêtement de sol dans les chambres. Tarif modifiable sans préavis). Etiquette énergie : A. Différents modèles disponibles pour ce terrain. Assurances et garanties du constructeur (RC professionnelle, décennale, dommage ouvrage, garantie de remboursement de l'acompte, livraison à prix et délai convenu) : https://www.lmp-constructeur.com/mentions-legales/.Agence Logis du Marais Poitevin de Saint-Gilles-Croix-de-Vie (85800)
- Téléphone :
- 02 51 55 34 29
- Adressse :
- 5 rue Gautté
85800 Saint-Gilles-Croix-de-Vie, France
