Maison neuve à
Commequiers
(85220) Référence :
NR2366288_1
Prix du projet : Maison avec Terrain
prix 176 900 €
- 2 pièces
- 1 chambre
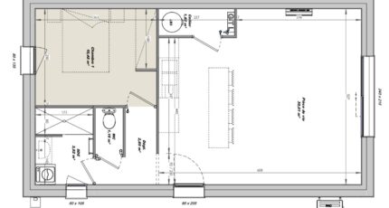
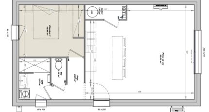
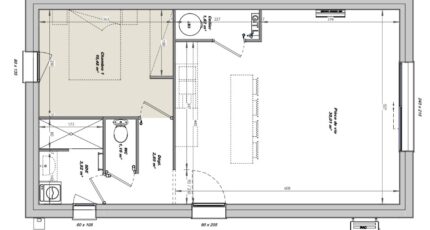
- Surface maison 50 m2
***** AU CENTRE DE COMMEQUIERS COMMERCES ET COMMODITES A VOS PEIDS *****
VENTE d'une maison de 2 pièces (50 m²) à Commequiers
QUARTIER RECHERCHÉ - MAISON 2 PIÈCES NEUVE
À vendre à 12 km de la côte atlantique, notre agence LMP Constructeur Saint-Gilles-Croix-de-Vie est heureuse de vous présenter cette maison de 2 pièces de plain-pied de 50 m² dans un secteur prisé de Commequiers (85220).
Elle inclut une chambre, une cuisine et une salle de bains. La maison est neuve.
Le terrain de la propriété est de 499 m².
Cette maison se situe dans un quartier recherché. On trouve l'École Primaire Publique Robert Doisneau et l'École Primaire Privée Mixte Saint Pierre à moins de 10 minutes à pied. Côté transports en commun, il y a la gare Challans à moins de 10 minutes en voiture. On trouve un tennis, deux commerces, une boulangerie, un supermarché et une poissonnerie à proximité.
Elle est proposée à l'achat pour 176 900 €.
Contactez notre constructeur (Nicolas RISSELIN : 06-80-33-03-82) pour tout renseignement sur la propriété, sur les démarches à suivre ou sur les modalités de vente. Donnez vie à vos projets immobiliers avec LMP Constructeur Saint-Gilles-Croix-de-Vie.
***** AU CENTRE DE COMMEQUIERS COMMERCES ET COMMODITES A VOS PEIDS *****
Mentions légales
Terrain proposé par un partenaire foncier selon disponibilités et autorisation de publicité au prix de 78 500 €. Hors droit d'enregistrement et frais de notaire. Terrain + Maison proposés au prix de 98 400 € (Hors branchements et raccordements, papiers peints, peintures, revêtement de sol dans les chambres. Tarif modifiable sans préavis). Etiquette énergie : A. Différents modèles disponibles pour ce terrain. Assurances et garanties du constructeur (RC professionnelle, décennale, dommage ouvrage, garantie de remboursement de l'acompte, livraison à prix et délai convenu) : https://www.lmp-constructeur.com/mentions-legales/.Agence Logis du Marais Poitevin de Saint-Gilles-Croix-de-Vie (85800)
- Téléphone :
- 02 51 55 34 29
- Adressse :
- 5 rue Gautté
85800 Saint-Gilles-Croix-de-Vie, France
