Maison neuve à
Commequiers
(85220) Référence :
NR2311834_4
Prix du projet : Maison avec Terrain
prix 198 900 €
- 2 pièces
- 3 chambres
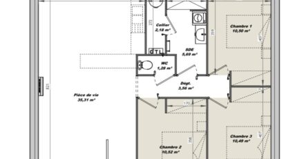
- Surface maison 79 m2
*********AU CENTRE BOURG ******
Maison T2 (79 m²) à vendre à Commequiers
IDÉALEMENT SITUÉE - MAISON 2 PIÈCES NEUVE
En vente : à 12 km de la côte atlantique, idéalement située dans Commequiers (85220), votre agence LMP Constructeur Saint-Gilles-Croix-de-Vie est ravie de vous présenter cette maison de 2 pièces de plain-pied de 79 m². Elle offre trois chambres, une cuisine et une salle de bains.
Le terrain du bien s'étend sur 382 m².
Cette maison est neuve.
Cette maison est située dans un quartier attractif. L'École Primaire Publique Robert Doisneau et l'École Primaire Privée Mixte Saint Pierre se trouvent à moins de 10 minutes à pied. Côté transports en commun, il y a la gare Challans à moins de 10 minutes en voiture. On trouve un tennis, deux commerces, une boulangerie, un supermarché et une poissonnerie à proximité de la maison.
Son prix de vente est de 198 900 €.
Prenez contact avec notre agence (Nicolas RISSELIN : 06-80-33-03-82) pour obtenir de plus amples renseignements sur le bien, sur les modalités de vente et sur les démarches à suivre. LMP Constructeur Saint-Gilles-Croix-de-Vie est là pour vous accompagner dans tous vos projets immobiliers.
*********AU CENTRE BOURG ******
Mentions légales
Terrain proposé par un partenaire foncier selon disponibilités et autorisation de publicité au prix de 62 000 €. Hors droit d'enregistrement et frais de notaire. Maison proposée, avec un contrat de construction de maison individuelle, dans le cadre de la loi du 19/12/1990, au prix de 136 900 € (Hors branchements et raccordements, papiers peints, peintures, revêtement de sol dans les chambres, qui sont chiffrés dans les travaux qui restent à charge du client. Tarif modifiable sans préavis). Étiquette énergie : A. Différents modèles disponibles pour ce terrain. Assurances et garanties du constructeur comprises (RC professionnelle, décennale, dommage ouvrage).Agence Logis du Marais Poitevin de Saint-Gilles-Croix-de-Vie (85800)
- Téléphone :
- 02 51 55 34 29
- Adressse :
- 5 rue Gautté
85800 Saint-Gilles-Croix-de-Vie, France
