Maison neuve à
Commequiers
(85220) Référence :
NR2311834_2
Prix du projet : Maison avec Terrain
prix 176 900 €
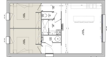
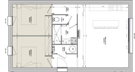
- 2 pièces
- 2 chambres
- Surface maison 61 m2
*********AU CENTRE BOURG ******
Commequiers : maison F2 (61 m²) en vente
IDÉALEMENT SITUÉE - MAISON 2 PIÈCES NEUVE
À vendre : à 12 km de l'océan Atlantique, nous vous présentons cette maison de 2 pièces de plain-pied de 61 m², idéalement située dans Commequiers (85220). Son intérieur dispose de deux chambres, d'une cuisine et d'une salle de bains.
Le terrain du bien s'étend sur 382 m².
La maison est neuve.
Cette maison se trouve dans un quartier attractif. Il y a l'École Primaire Publique Robert Doisneau et l'École Primaire Privée Mixte Saint Pierre à moins de 10 minutes à pied. Niveau transports en commun, on trouve la gare Challans à moins de 10 minutes en voiture. Il y a un tennis, deux commerces, une boulangerie, un supermarché et une poissonnerie à proximité.
Elle est proposée à l'achat pour 176 900 €.
N'hésitez pas à prendre contact avec Nicolas RISSELIN (06-80-33-03-82) pour toute information sur la maison, sur les démarches à suivre ou sur les modalités de vente. LMP Constructeur Saint-Gilles-Croix-de-Vie vous accompagne dans tous vos projets immobiliers et à toutes les étapes de votre projet.
*********AU CENTRE BOURG ******
Mentions légales
Terrain proposé par un partenaire foncier selon disponibilités et autorisation de publicité au prix de 62 000 €. Hors droit d'enregistrement et frais de notaire. Maison proposée, avec un contrat de construction de maison individuelle, dans le cadre de la loi du 19/12/1990, au prix de 114 900 € (Hors branchements et raccordements, papiers peints, peintures, revêtement de sol dans les chambres, qui sont chiffrés dans les travaux qui restent à charge du client. Tarif modifiable sans préavis). Étiquette énergie : A. Différents modèles disponibles pour ce terrain. Assurances et garanties du constructeur comprises (RC professionnelle, décennale, dommage ouvrage).Agence Logis du Marais Poitevin de Saint-Gilles-Croix-de-Vie (85800)
- Téléphone :
- 02 51 55 34 29
- Adressse :
- 5 rue Gautté
85800 Saint-Gilles-Croix-de-Vie, France
