Maison neuve à
Commequiers
(85220) Référence :
NR2241115_5
Prix du projet : Maison avec Terrain
prix 191 900 €
- 2 pièces
- 2 chambres
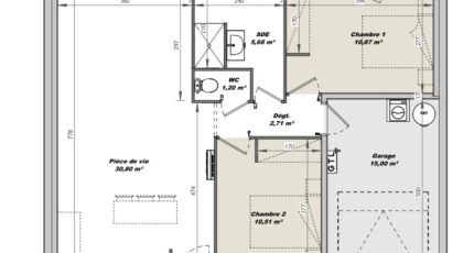
- Surface maison 61 m2
*********AU CENTRE BOURG********
Commequiers : maison de 2 pièces (61 m²) à vendre
EMPLACEMENT PRIVILÉGIÉ - MAISON 2 PIÈCES NEUVE
En vente : localisée à 12 km de la côte atlantique, bénéficiant d'un emplacement d'exception dans Commequiers (85220), nous sommes ravis de vous présenter cette maison de 2 pièces de plain-pied de 61 m². Son intérieur propose deux chambres, une cuisine et une salle de bains.
Le terrain du bien est de 322 m².
La maison est neuve.
La maison se situe dans un secteur recherché. L'École Primaire Publique Robert Doisneau et l'École Primaire Privée Mixte Saint Pierre se trouvent à moins de 10 minutes à pied. Niveau transports, il y a la gare Challans à moins de 10 minutes en voiture. On trouve un tennis, deux commerces, une boulangerie, un supermarché et une poissonnerie à proximité du logement.
Elle est à vendre pour la somme de 191 900 €.
Prenez contact avec Nicolas RISSELIN (tél : 06-80-33-03-82) pour plus de renseignements sur le bien et sur les démarches à suivre. LMP Constructeur Saint-Gilles-Croix-de-Vie vous accompagne dans tous vos projets immobiliers et à toutes les étapes de votre projet.
*********AU CENTRE BOURG********
Mentions légales
Terrain proposé par un partenaire foncier selon disponibilités et autorisation de publicité au prix de 63 000 €. Hors droit d'enregistrement et frais de notaire. Maison proposée, avec un contrat de construction de maison individuelle, dans le cadre de la loi du 19/12/1990, au prix de 128 900 € (Hors branchements et raccordements, papiers peints, peintures, revêtement de sol dans les chambres, qui sont chiffrés dans les travaux qui restent à charge du client. Tarif modifiable sans préavis). Étiquette énergie : A. Différents modèles disponibles pour ce terrain. Assurances et garanties du constructeur comprises (RC professionnelle, décennale, dommage ouvrage).Agence Logis du Marais Poitevin de Saint-Gilles-Croix-de-Vie (85800)
- Téléphone :
- 02 51 55 34 29
- Adressse :
- 5 rue Gautté
85800 Saint-Gilles-Croix-de-Vie, France
