Maison neuve à
Coëx
(85220) Référence :
NR2305579_7
Prix du projet : Maison avec Terrain
prix 219 900 €
- 2 pièces
- 2 chambres
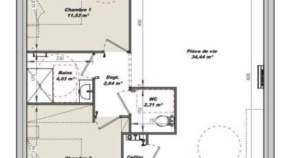
- Surface maison 61 m2
***** CENTRE VILLE ******
Coëx : maison F2 (61 m²) à vendre
IDÉALEMENT SITUÉE - MAISON 2 PIÈCES NEUVE
À vendre : à 13 km de l'océan Atlantique et à quelques kilomètres de La Roche-sur-Yon, nous vous proposons, idéalement située dans Coëx (85220), cette maison de 2 pièces de plain-pied de 61 m². Elle propose deux chambres, une cuisine et une salle de bains.
Le terrain de la maison est de 400 m².
Cette maison est neuve.
Cette propriété se situe dans un quartier convoité. Il y a l'École Primaire Publique Jules Verne et l'École Primaire Privée Saint Joseph à moins de 10 minutes à pied. L'autoroute A87 est accessible à 20 km. On trouve un tennis, deux boulangeries, quatre commerces, un supermarché, une épicerie et deux boucheries-charcuteries dans les environs.
Elle est à vendre pour la somme de 219 900 €.
Contactez Nicolas RISSELIN (06-80-33-03-82) pour toute question sur la maison ou sur les démarches à suivre. LMP Constructeur Challans vous accompagne à toutes les étapes de votre projet et dans tous vos projets immobiliers.
***** CENTRE VILLE ******
Mentions légales
Terrain proposé par un partenaire foncier selon disponibilités et autorisation de publicité au prix de 90 000 €. Hors droit d'enregistrement et frais de notaire. Terrain + Maison proposés au prix de 129 900 € (Hors branchements et raccordements, papiers peints, peintures, revêtement de sol dans les chambres. Tarif modifiable sans préavis). Etiquette énergie : A. Différents modèles disponibles pour ce terrain. Assurances et garanties du constructeur (RC professionnelle, décennale, dommage ouvrage, garantie de remboursement de l'acompte, livraison à prix et délai convenu) : https://www.lmp-constructeur.com/mentions-legales/.Agence Logis du Marais Poitevin de Challans (85300)
- Téléphone :
- 02 51 55 17 74
- Adressse :
- 4 Place du Champ de Foire
85300 Challans, France
