Maison neuve à
Coëx
(85220) Référence :
NR2305579_6
Prix du projet : Maison avec Terrain
prix 199 900 €
- 2 pièces
- 1 chambre
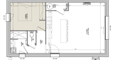
- Surface maison 50 m2
***** CENTRE VILLE ******
Maison T2 (50 m²) à vendre à Coëx
IDÉALEMENT SITUÉE - MAISON 2 PIÈCES NEUVE
À vendre : à 13 km de l'océan Atlantique et à 26 km de La Roche-sur-Yon, nous sommes heureux de vous proposer cette maison de 2 pièces de plain-pied de 50 m² idéalement située dans Coëx (85220).
Son intérieur compte une chambre, une cuisine et une salle de bains. Cette maison est neuve.
Le terrain du bien s'étend sur 400 m².
Cette maison se trouve dans un secteur attractif. Il y a l'École Primaire Publique Jules Verne et l'École Primaire Privée Saint Joseph à moins de 10 minutes à pied. On trouve un accès à l'autoroute A87 à 20 km. On trouve un tennis, deux boulangeries, quatre commerces, un supermarché, une épicerie et deux boucheries-charcuteries à proximité.
Elle est à vendre pour la somme de 199 900 €.
N'hésitez pas à prendre contact avec Nicolas RISSELIN (tél : 06-80-33-03-82) pour plus de renseignements sur la propriété, sur les modalités de vente ou sur les démarches à suivre. LMP Constructeur Challans vous accompagne à toutes les étapes de votre projet et dans tous vos projets immobiliers.
***** CENTRE VILLE ******
Mentions légales
Terrain proposé par un partenaire foncier selon disponibilités et autorisation de publicité au prix de 90 000 €. Hors droit d'enregistrement et frais de notaire. Terrain + Maison proposés au prix de 109 900 € (Hors branchements et raccordements, papiers peints, peintures, revêtement de sol dans les chambres. Tarif modifiable sans préavis). Etiquette énergie : A. Différents modèles disponibles pour ce terrain. Assurances et garanties du constructeur (RC professionnelle, décennale, dommage ouvrage, garantie de remboursement de l'acompte, livraison à prix et délai convenu) : https://www.lmp-constructeur.com/mentions-legales/.Agence Logis du Marais Poitevin de Challans (85300)
- Téléphone :
- 02 51 55 17 74
- Adressse :
- 4 Place du Champ de Foire
85300 Challans, France
