Maison neuve à
Coëx
(85220) Référence :
NR2305579_11
Prix du projet : Maison avec Terrain
prix 213 900 €
- 2 pièces
- 2 chambres
- Surface maison 61 m2
***** CENTRE VILLE ******
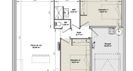
VENTE d'une maison de 2 pièces (61 m²) à Coëx
IDÉALEMENT SITUÉE - MAISON 2 PIÈCES NEUVE
En vente : localisée à 13 km de la côte atlantique et à deux pas de La Roche-sur-Yon, LMP Constructeur Challans vous présente cette maison de 2 pièces de plain-pied de 61 m² et de 400 m² de terrain, idéalement située dans Coëx (85220).
Son intérieur dispose de deux chambres, d'une cuisine et d'une salle de bains. Cette maison est neuve.
La maison est située dans un secteur convoité. Il y a l'École Primaire Publique Jules Verne et l'École Primaire Privée Saint Joseph à moins de 10 minutes à pied. On trouve un accès à l'autoroute A87 à 20 km. On trouve un tennis, deux boulangeries, quatre commerces, un supermarché, deux boucheries-charcuteries et une épicerie à proximité du bien.
Elle est proposée à l'achat pour 213 900 €.
Contactez notre agence (Nicolas RISSELIN : 06-80-33-03-82) pour obtenir de plus amples informations sur la maison ou sur les modalités de vente. Faites de vos projets immobiliers une réalité avec LMP Constructeur Challans.
***** CENTRE VILLE ******
Mentions légales
Terrain proposé par un partenaire foncier selon disponibilités et autorisation de publicité au prix de 90 000 €. Hors droit d'enregistrement et frais de notaire. Terrain + Maison proposés au prix de 123 900 € (Hors branchements et raccordements, papiers peints, peintures, revêtement de sol dans les chambres. Tarif modifiable sans préavis). Etiquette énergie : A. Différents modèles disponibles pour ce terrain. Assurances et garanties du constructeur (RC professionnelle, décennale, dommage ouvrage, garantie de remboursement de l'acompte, livraison à prix et délai convenu) : https://www.lmp-constructeur.com/mentions-legales/.Agence Logis du Marais Poitevin de Challans (85300)
- Téléphone :
- 02 51 55 17 74
- Adressse :
- 4 Place du Champ de Foire
85300 Challans, France
