Maison neuve à
Coëx
(85220) Référence :
NR2305579_4
Prix du projet : Maison avec Terrain
prix 219 900 €
- 2 pièces
- 3 chambres
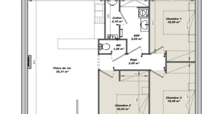
- Surface maison 79 m2
***** CENTRE VILLE ******
VENTE : maison de 2 pièces (79 m²) à Coëx
IDÉALEMENT SITUÉE - MAISON 2 PIÈCES NEUVE
En vente à 13 km de la côte atlantique et à quelques kilomètres de La Roche-sur-Yon, nous vous proposons cette maison de 2 pièces de plain-pied de 79 m² et de 400 m² de terrain idéalement située dans Coëx (85220). Son intérieur propose trois chambres, une cuisine et une salle de bains.
La maison est neuve.
Cette maison est située dans un secteur recherché. L'École Primaire Publique Jules Verne et l'École Primaire Privée Saint Joseph sont implantées à moins de 10 minutes à pied. Il y a un accès à l'autoroute A87 à 20 km. Il y a un tennis, deux boulangeries, quatre commerces, un supermarché, une épicerie et deux boucheries-charcuteries à proximité du bien.
Elle est à vendre pour la somme de 219 900 €.
Prenez contact avec Nicolas RISSELIN (06-80-33-03-82) pour toute question sur la maison ou sur les modalités de vente. LMP Constructeur Saint-Gilles-Croix-de-Vie vous accompagne dans toutes vos démarches et dans tous vos projets immobiliers.
***** CENTRE VILLE ******
Mentions légales
Terrain proposé par un partenaire foncier selon disponibilités et autorisation de publicité au prix de 90 000 €. Hors droit d'enregistrement et frais de notaire. Maison proposée, avec un contrat de construction de maison individuelle, dans le cadre de la loi du 19/12/1990, au prix de 129 900 € (Hors branchements et raccordements, papiers peints, peintures, revêtement de sol dans les chambres, qui sont chiffrés dans les travaux qui restent à charge du client. Tarif modifiable sans préavis). Étiquette énergie : A. Différents modèles disponibles pour ce terrain. Assurances et garanties du constructeur comprises (RC professionnelle, décennale, dommage ouvrage).Agence Logis du Marais Poitevin de Saint-Gilles-Croix-de-Vie (85800)
- Téléphone :
- 02 51 55 34 29
- Adressse :
- 5 rue Gautté
85800 Saint-Gilles-Croix-de-Vie, France
