Maison neuve à
Coëx
(85220) Référence :
NR2305579_3
Prix du projet : Maison avec Terrain
prix 212 900 €
- 2 pièces
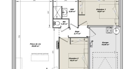
- 2 chambres
- Surface maison 61 m2
***** CENTRE VILLE ******
Maison de 2 pièces (61 m²) à vendre à Coëx
IDÉALEMENT SITUÉE - MAISON 2 PIÈCES NEUVE
À vendre à 13 km de l'océan Atlantique et à 26 km de La Roche-sur-Yon, notre agence LMP Constructeur Saint-Gilles-Croix-de-Vie est ravie de vous proposer cette maison de 2 pièces de plain-pied de 61 m² et de 400 m² de terrain, idéalement située dans Coëx (85220).
Conçue de plain-pied, elle offre deux chambres, une cuisine et une salle de bains. Cette maison est neuve.
La maison est située dans un quartier convoité. Il y a l'École Primaire Publique Jules Verne et l'École Primaire Privée Saint Joseph à moins de 10 minutes à pied. On trouve un accès à l'autoroute A87 à 20 km. On trouve un tennis, deux boulangeries, quatre commerces, un supermarché, une épicerie et deux boucheries-charcuteries à quelques minutes de la maison.
Elle est proposée à l'achat pour 212 900 €.
N'hésitez pas à prendre contact avec Nicolas RISSELIN (tél : 06-80-33-03-82) pour plus d'informations sur la propriété ou sur les démarches à suivre.
***** CENTRE VILLE ******
Mentions légales
Terrain proposé par un partenaire foncier selon disponibilités et autorisation de publicité au prix de 90 000 €. Hors droit d'enregistrement et frais de notaire. Maison proposée, avec un contrat de construction de maison individuelle, dans le cadre de la loi du 19/12/1990, au prix de 122 900 € (Hors branchements et raccordements, papiers peints, peintures, revêtement de sol dans les chambres, qui sont chiffrés dans les travaux qui restent à charge du client. Tarif modifiable sans préavis). Étiquette énergie : A. Différents modèles disponibles pour ce terrain. Assurances et garanties du constructeur comprises (RC professionnelle, décennale, dommage ouvrage).Agence Logis du Marais Poitevin de Challans (85300)
- Téléphone :
- 02 51 55 17 74
- Adressse :
- 4 Place du Champ de Foire
85300 Challans, France
