Maison neuve à
Coëx
(85220) Référence :
NR2305579_1
Prix du projet : Maison avec Terrain
prix 195 900 €
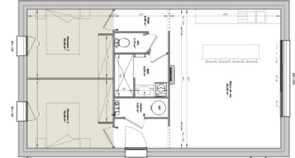
- 2 pièces
- 2 chambres
- Surface maison 61 m2
Coëx : maison F2 (61 m²) à vendre
***** CENTRE VILLE ******
IDÉALEMENT SITUÉE - MAISON 2 PIÈCES NEUVE
En vente : à 13 km de la côte atlantique et à deux pas de La Roche-sur-Yon, nous vous présentons, idéalement située dans Coëx (85220), cette maison de 2 pièces de plain-pied de 61 m².
Conçue de plain-pied, elle offre deux chambres, une cuisine et une salle de bains. La maison est neuve.
Le terrain du bien est de 400 m².
Cette maison se trouve dans un secteur attractif. L'École Primaire Publique Jules Verne et l'École Primaire Privée Saint Joseph sont implantées à moins de 10 minutes à pied. L'autoroute A87 est accessible à 20 km. On trouve un tennis, deux boulangeries, quatre commerces, un supermarché, deux boucheries-charcuteries et une épicerie à quelques minutes du logement.
Elle est proposée à l'achat pour 195 900 €.
Prenez contact avec notre agence (Nicolas RISSELIN : 06-80-33-03-82) pour tout renseignement sur la maison, sur les démarches à suivre ou sur les modalités de vente. LMP Constructeur Saint-Gilles-Croix-de-Vie vous accompagne à toutes les étapes de votre projet et dans tous vos projets immobiliers.
***** CENTRE VILLE ******
Mentions légales
Terrain proposé par un partenaire foncier selon disponibilités et autorisation de publicité au prix de 90 000 €. Hors droit d'enregistrement et frais de notaire. Maison proposée, avec un contrat de construction de maison individuelle, dans le cadre de la loi du 19/12/1990, au prix de 105 900 € (Hors branchements et raccordements, papiers peints, peintures, revêtement de sol dans les chambres, qui sont chiffrés dans les travaux qui restent à charge du client. Tarif modifiable sans préavis). Étiquette énergie : A. Différents modèles disponibles pour ce terrain. Assurances et garanties du constructeur comprises (RC professionnelle, décennale, dommage ouvrage).Agence Logis du Marais Poitevin de Saint-Gilles-Croix-de-Vie (85800)
- Téléphone :
- 02 51 55 34 29
- Adressse :
- 5 rue Gautté
85800 Saint-Gilles-Croix-de-Vie, France
