Maison neuve à
Challans
(85300) Référence :
SS2437945_4
Prix du projet : Maison avec Terrain
prix 211 900 €
- 4 pièces
- 3 chambres
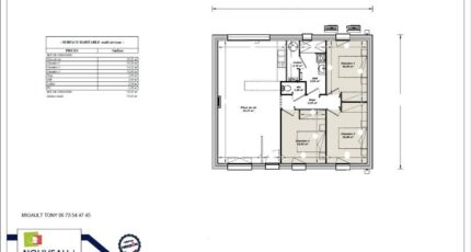
- Surface maison 79 m2
Maison T4 (79 m²) à vendre à Challans
MAISON 4 PIÈCES NEUVE
À vendre à 17 km de l'océan Atlantique, à Challans (85300), LMP Constructeur Challans vous propose cette maison de 4 pièces de plain-pied de 79 m². Conçue de plain-pied, elle se divise en trois chambres, une cuisine et une salle de bains.
Le terrain de la propriété s'étend sur 475 m².
Cette maison est neuve.
Des établissements scolaires de tous niveaux sont implantés à moins de 10 minutes à pied, tout comme deux structures d'accueil pour la petite enfance. Côté transports, on trouve la gare Challans à proximité. Il y a deux bassins de natation, un tennis, des commerces, des boulangeries, deux supermarchés, un bureau de poste et des boucheries-charcuteries dans les environs.
Elle est à vendre pour la somme de 211 900 €.
N'hésitez pas à prendre contact avec Samuel SIRET pour toute question sur la maison et sur les démarches à suivre. Concrétisez vos projets immobiliers avec LMP Constructeur Challans.
Mentions légales
Terrain proposé par un partenaire foncier selon disponibilités et autorisation de publicité au prix de 77 900 €. Hors droit d'enregistrement et frais de notaire. Terrain + Maison proposés au prix de 211 900 € (Hors branchements et raccordements, papiers peints, peintures, revêtement de sol dans les chambres. Tarif modifiable sans préavis). Etiquette énergie : A. Différents modèles disponibles pour ce terrain. Assurances et garanties du constructeur (RC professionnelle, décennale, dommage ouvrage, garantie de remboursement de l'acompte, livraison à prix et délai convenu) : https://www.lmp-constructeur.com/mentions-legales/.Agence Logis du Marais Poitevin de Challans (85300)
- Téléphone :
- 02 51 55 17 74
- Adressse :
- 4 Place du Champ de Foire
85300 Challans, France
