Maison neuve à
Challans
(85300) Référence :
SS2437945_1
Prix du projet : Maison avec Terrain
prix 216 900 €
- 4 pièces
- 3 chambres
- Surface maison 75 m2
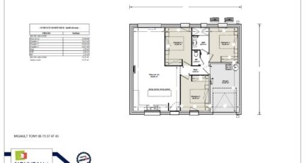
VENTE d'une maison de 4 pièces (75 m²) à Challans
MAISON 4 PIÈCES NEUVE
En vente : à 17 km de la côte atlantique, notre agence LMP Constructeur Challans est ravie de vous proposer cette maison de 4 pièces de plain-pied de 75 m² et de 475 m² de terrain à Challans (85300). Conçue de plain-pied, elle se divise en trois chambres, une cuisine et une salle de bains.
Cette maison est neuve.
Des écoles (de la maternelle au lycée) sont implantées à moins de 10 minutes à pied, tout comme deux structures d'accueil pour la petite enfance. Niveau transports en commun, il y a la gare Challans à proximité. On trouve deux bassins de natation, un tennis, des commerces, des boulangeries, deux supermarchés, deux poissonneries et deux épiceries à quelques minutes à peine.
Elle est proposée à l'achat pour 216 900 €.
Contactez notre agence pour plus de renseignements sur la propriété, sur les démarches à suivre ou sur les modalités de vente. Donnez vie à vos projets immobiliers avec LMP Constructeur Challans.
Mentions légales
Terrain proposé par un partenaire foncier selon disponibilités et autorisation de publicité au prix de 77 900 €. Hors droit d'enregistrement et frais de notaire. Terrain + Maison proposés au prix de 216 900 € (Hors branchements et raccordements, papiers peints, peintures, revêtement de sol dans les chambres. Tarif modifiable sans préavis). Etiquette énergie : A. Différents modèles disponibles pour ce terrain. Assurances et garanties du constructeur (RC professionnelle, décennale, dommage ouvrage, garantie de remboursement de l'acompte, livraison à prix et délai convenu) : https://www.lmp-constructeur.com/mentions-legales/.Agence Logis du Marais Poitevin de Challans (85300)
- Téléphone :
- 02 51 55 17 74
- Adressse :
- 4 Place du Champ de Foire
85300 Challans, France
