Maison neuve à
Challans
(85300) Référence :
SS2433640_1
Prix du projet : Maison avec Terrain
prix 210 000 €
- 4 pièces
- 3 chambres
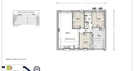
- Surface maison 75 m2
VENTE d'une maison F4 (75 m²) à Challans
MAISON 4 PIÈCES NEUVE
À vendre : à 17 km de la côte atlantique, LMP Constructeur Challans vous présente cette maison de 4 pièces de plain-pied de 75 m² à Challans (85300).
Elle offre trois chambres, une cuisine et une salle de bains. La maison est neuve.
Le terrain de la propriété est de 427 m².
Il y a tous les types d'écoles à moins de 10 minutes à pied, tout comme deux structures d'accueil pour les enfants en bas âge. Côté transports en commun, on trouve la gare Challans juste à côté. Il y a deux bassins de natation, un tennis, des commerces, des boulangeries, deux supermarchés, des boucheries-charcuteries et un bureau de poste dans les environs.
Elle est à vendre pour la somme de 210 000 €.
Prenez contact avec notre agence (Samuel SIRET : 02-51-55-17-74) pour plus d'informations sur cette propriété, sur les démarches à suivre et sur les modalités de vente. LMP Constructeur Challans vous accompagne à toutes les étapes de votre projet et dans tous vos projets immobiliers.
Mentions légales
Terrain proposé par un partenaire foncier selon disponibilités et autorisation de publicité au prix de 70 000 €. Hors droit d'enregistrement et frais de notaire. Terrain + Maison proposés au prix de 210 000 € (Hors branchements et raccordements, papiers peints, peintures, revêtement de sol dans les chambres. Tarif modifiable sans préavis). Etiquette énergie : A. Différents modèles disponibles pour ce terrain. Assurances et garanties du constructeur (RC professionnelle, décennale, dommage ouvrage, garantie de remboursement de l'acompte, livraison à prix et délai convenu) : https://www.lmp-constructeur.com/mentions-legales/.Agence Logis du Marais Poitevin de Challans (85300)
- Téléphone :
- 02 51 55 17 74
- Adressse :
- 4 Place du Champ de Foire
85300 Challans, France
