Maison neuve à
Challans
(85300) Référence :
TM2376425_1
Prix du projet : Maison avec Terrain
prix 153 900 €
- 2 pièces
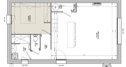
- 1 chambre
- Surface maison 50 m2
(NICOLAS: 06-80-33-03-82)
VENTE : maison T2 (50 m²) à Challans
IDÉALEMENT SITUÉE - MAISON 2 PIÈCES NEUVE
En vente : située à 17 km de la côte atlantique, LMP Constructeur Challans vous propose, idéalement située dans Challans (85300), cette maison de 2 pièces de plain-pied de 50 m² et de 228 m² de terrain.
Elle compte une chambre, une cuisine et une salle de bains. La maison est neuve.
Cette maison est située dans un secteur attractif. Des écoles du primaire et du secondaire sont implantées à moins de 10 minutes à pied, tout comme deux crèches. Côté transports en commun, on trouve la gare Challans juste à côté. Il y a deux bassins de natation, un tennis, des commerces, des boulangeries, deux supermarchés, deux épiceries et deux poissonneries à proximité.
Elle est à vendre pour la somme de 153 900 €.
Prenez contact avec notre agence (NICOLAS: 06-80-33-03-82) pour toute question sur la propriété ou sur les modalités de vente.
Mentions légales
Terrain proposé par un partenaire foncier selon disponibilités et autorisation de publicité au prix de 57 100 €. Hors droit d'enregistrement et frais de notaire. Terrain + Maison proposés au prix de 96 800 € (Hors branchements et raccordements, papiers peints, peintures, revêtement de sol dans les chambres. Tarif modifiable sans préavis). Etiquette énergie : A. Différents modèles disponibles pour ce terrain. Assurances et garanties du constructeur (RC professionnelle, décennale, dommage ouvrage, garantie de remboursement de l'acompte, livraison à prix et délai convenu) : https://www.lmp-constructeur.com/mentions-legales/.Agence Logis du Marais Poitevin de Challans (85300)
- Téléphone :
- 02 51 55 17 74
- Adressse :
- 4 Place du Champ de Foire
85300 Challans, France
