Maison neuve à
Challans
(85300) Référence :
NR2360829_6
Prix du projet : Maison avec Terrain
prix 195 600 €
- 4 pièces
- 3 chambres
- Surface maison 79 m2
***** A SEULEMENT QUELQUES MINUTES AU CENTRE *****
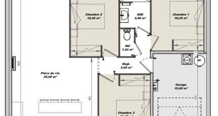
Challans : maison de 4 pièces (79 m²) à vendre
IDÉALEMENT SITUÉE - MAISON 4 PIÈCES NEUVE
À 17 km de l'océan Atlantique, à vendre idéalement située dans Challans (85300), notre agence LMP Constructeur Challans est ravie de vous présenter cette maison de 4 pièces de plain-pied de 79 m².
Elle comporte trois chambres, une cuisine et une salle de bains. Cette maison est neuve.
Le terrain de la propriété est de 228 m².
Le bien est situé dans un quartier prisé. Des établissements scolaires de tous niveaux (de la maternelle au lycée) sont implantés à moins de 10 minutes à pied, tout comme deux structures d'accueil pour la petite enfance. Niveau transports en commun, il y a la gare Challans à proximité. On trouve deux bassins de natation, un tennis, des commerces, des boulangeries, deux supermarchés, deux épiceries et un bureau de poste à quelques minutes à peine.
Son prix de vente est de 195 600 €.
N'hésitez pas à prendre contact avec notre constructeur (Nicolas RISSELIN : 06-80-33-03-82) pour obtenir de plus amples renseignements sur la maison. LMP Constructeur Challans vous accompagne dans tous vos projets immobiliers et dans toutes vos démarches.
***** A SEULEMENT QUELQUES MINUTES AU CENTRE *****
Mentions légales
Terrain proposé par un partenaire foncier selon disponibilités et autorisation de publicité au prix de 57 100 €. Hors droit d'enregistrement et frais de notaire. Terrain + Maison proposés au prix de 138 500 € (Hors branchements et raccordements, papiers peints, peintures, revêtement de sol dans les chambres. Tarif modifiable sans préavis). Etiquette énergie : A. Différents modèles disponibles pour ce terrain. Assurances et garanties du constructeur (RC professionnelle, décennale, dommage ouvrage, garantie de remboursement de l'acompte, livraison à prix et délai convenu) : https://www.lmp-constructeur.com/mentions-legales/.Agence Logis du Marais Poitevin de Challans (85300)
- Téléphone :
- 02 51 55 17 74
- Adressse :
- 4 Place du Champ de Foire
85300 Challans, France
