Maison neuve à
Challans
(85300) Référence :
NR2360829_4
Prix du projet : Maison avec Terrain
prix 191 000 €
- 2 pièces
- 3 chambres
- Surface maison 79 m2
***** A SEULEMENT QUELQUES MINUTES AU CENTRE *****
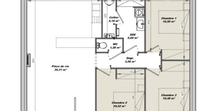
VENTE d'une maison T2 (79 m²) à Challans
IDÉALEMENT SITUÉE - MAISON 2 PIÈCES NEUVE
En vente : à 17 km de l'océan Atlantique, idéalement située dans Challans (85300), votre agence LMP Constructeur Challans est ravie de vous présenter cette maison de 2 pièces de plain-pied de 79 m². Elle propose trois chambres, une cuisine et une salle de bains.
Le terrain du bien s'étend sur 228 m².
Cette maison est neuve.
La maison se trouve dans un quartier recherché. Il y a des établissements scolaires (de la maternelle au lycée) à moins de 10 minutes à pied, tout comme deux structures d'accueil pour les tout-petits. Niveau transports, on trouve la gare Challans à proximité. Il y a deux bassins de natation, un tennis, des commerces, des boulangeries, deux supermarchés, des boucheries-charcuteries et deux poissonneries à quelques minutes.
Elle est proposée à l'achat pour 191 000 €.
Prenez contact avec Nicolas RISSELIN (tél : 06-80-33-03-82) pour plus d'informations sur la maison, sur les démarches à suivre et sur les modalités de vente. Faites de vos projets immobiliers une réalité avec LMP Constructeur Challans.
***** A SEULEMENT QUELQUES MINUTES AU CENTRE *****
Mentions légales
Terrain proposé par un partenaire foncier selon disponibilités et autorisation de publicité au prix de 57 100 €. Hors droit d'enregistrement et frais de notaire. Terrain + Maison proposés au prix de 133 900 € (Hors branchements et raccordements, papiers peints, peintures, revêtement de sol dans les chambres. Tarif modifiable sans préavis). Etiquette énergie : A. Différents modèles disponibles pour ce terrain. Assurances et garanties du constructeur (RC professionnelle, décennale, dommage ouvrage, garantie de remboursement de l'acompte, livraison à prix et délai convenu) : https://www.lmp-constructeur.com/mentions-legales/.Agence Logis du Marais Poitevin de Challans (85300)
- Téléphone :
- 02 51 55 17 74
- Adressse :
- 4 Place du Champ de Foire
85300 Challans, France
