Maison neuve à
Challans
(85300) Référence :
NR2360829_2
Prix du projet : Maison avec Terrain
prix 173 900 €
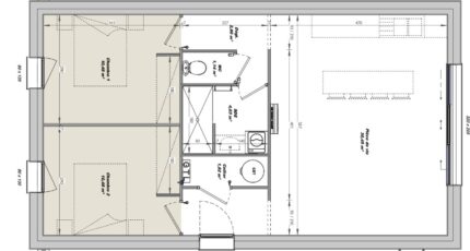
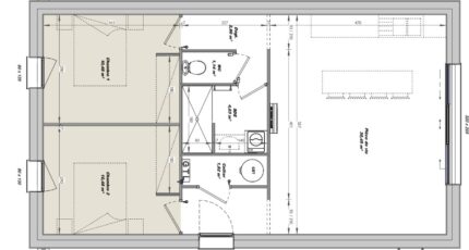
- 2 pièces
- 2 chambres
- Surface maison 61 m2
***** A SEULEMENT QUELQUES MINUTES AU CENTRE *****
VENTE : maison T2 (61 m²) à Challans
IDÉALEMENT SITUÉE - MAISON 2 PIÈCES NEUVE
À vendre : localisée à 17 km de l'océan Atlantique, ayez le coup de coeur pour cette maison de 2 pièces de plain-pied de 61 m², idéalement située dans Challans (85300).
Son intérieur propose deux chambres, une cuisine et une salle de bains. Cette maison est neuve.
Le terrain de la propriété s'étend sur 228 m².
Le bien est situé dans un quartier convoité. Il y a des établissements scolaires du primaire et du secondaire à moins de 10 minutes à pied, tout comme deux structures d'accueil pour les tout-petits. Côté transports, on trouve la gare Challans juste à côté. Il y a deux bassins de natation, un tennis, des commerces, des boulangeries, deux supermarchés, deux poissonneries et deux épiceries à quelques minutes.
Son prix de vente est de 173 900 €.
Prenez contact avec notre agence (Nicolas RISSELIN : 06-80-33-03-82) pour obtenir de plus amples informations sur la maison.
***** A SEULEMENT QUELQUES MINUTES AU CENTRE *****
Mentions légales
Terrain proposé par un partenaire foncier selon disponibilités et autorisation de publicité au prix de 57 100 €. Hors droit d'enregistrement et frais de notaire. Terrain + Maison proposés au prix de 116 800 € (Hors branchements et raccordements, papiers peints, peintures, revêtement de sol dans les chambres. Tarif modifiable sans préavis). Etiquette énergie : A. Différents modèles disponibles pour ce terrain. Assurances et garanties du constructeur (RC professionnelle, décennale, dommage ouvrage, garantie de remboursement de l'acompte, livraison à prix et délai convenu) : https://www.lmp-constructeur.com/mentions-legales/.Agence Logis du Marais Poitevin de Challans (85300)
- Téléphone :
- 02 51 55 17 74
- Adressse :
- 4 Place du Champ de Foire
85300 Challans, France
