Maison neuve à
Challans
(85300) Référence :
NR2360829_1
Prix du projet : Maison avec Terrain
prix 165 900 €
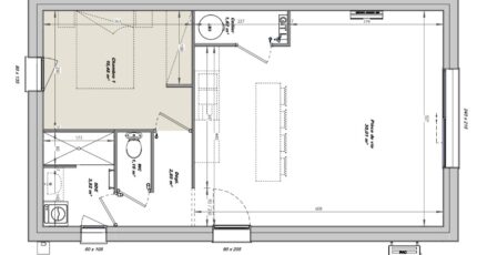
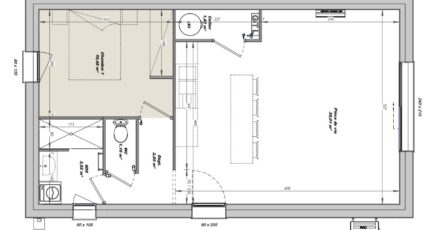
- 2 pièces
- 1 chambre
- Surface maison 50 m2
***** A SEULEMENT QUELQUES MINUTES AU CENTRE *****
VENTE : maison T2 (50 m²) à Challans
IDÉALEMENT SITUÉE - MAISON 2 PIÈCES NEUVE
À vendre à 17 km de la côte atlantique, nous vous présentons cette maison de 2 pièces de plain-pied de 50 m² et de 228 m² de terrain, idéalement située dans Challans (85300). Son intérieur compte une chambre, une cuisine et une salle de bains.
La maison est neuve.
La maison se situe dans un secteur recherché. Des écoles de tous niveaux (de la maternelle au lycée) se trouvent à moins de 10 minutes à pied, tout comme deux structures d'accueil pour les tout-petits. Côté transports en commun, il y a la gare Challans à quelques pas de la maison. On trouve deux bassins de natation, un tennis, des commerces, des boulangeries, deux supermarchés, deux poissonneries et des boucheries-charcuteries dans les environs.
Elle est à vendre pour la somme de 165 900 €.
N'hésitez pas à prendre contact avec Nicolas RISSELIN (tél : 06-80-33-03-82) pour toute information sur la maison.
***** A SEULEMENT QUELQUES MINUTES AU CENTRE *****
Mentions légales
Terrain proposé par un partenaire foncier selon disponibilités et autorisation de publicité au prix de 57 100 €. Hors droit d'enregistrement et frais de notaire. Terrain + Maison proposés au prix de 108 800 € (Hors branchements et raccordements, papiers peints, peintures, revêtement de sol dans les chambres. Tarif modifiable sans préavis). Etiquette énergie : A. Différents modèles disponibles pour ce terrain. Assurances et garanties du constructeur (RC professionnelle, décennale, dommage ouvrage, garantie de remboursement de l'acompte, livraison à prix et délai convenu) : https://www.lmp-constructeur.com/mentions-legales/.Agence Logis du Marais Poitevin de Challans (85300)
- Téléphone :
- 02 51 55 17 74
- Adressse :
- 4 Place du Champ de Foire
85300 Challans, France
