Maison neuve à
Challans
(85300) Référence :
TM2343178_1
Prix du projet : Maison avec Terrain
prix 245 000 €
- 3 pièces
- 2 chambres
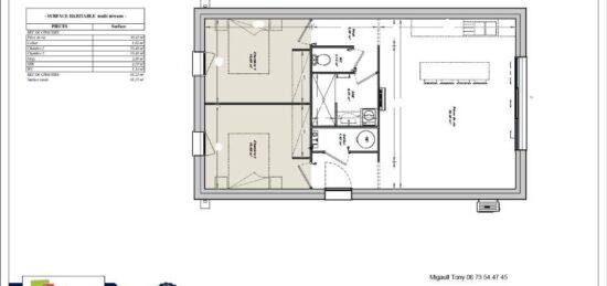
- Surface maison 82 m2
Maison de 3 pièces (82 m²) à vendre à Challans 300 de l' Hyper U !
QUARTIER RECHERCHÉ - MAISON 3 PIÈCES NEUVE
En vente à 17 km de la côte atlantique, LMP Constructeur Challans vous présente cette maison de 3 pièces de plain-pied de 82 m² et de 380 m² de terrain dans un quartier attractif de Challans (85300).
Elle inclut deux chambres, une cuisine et une salle de bains. La maison est neuve.
Cette maison se trouve dans un secteur recherché. Des écoles de tous types sont implantées à moins de 10 minutes à pied, tout comme deux crèches. Niveau transports, on trouve la gare Challans à proximité. Il y a deux bassins de natation, un tennis, des commerces, des boulangeries, deux supermarchés, des boucheries charcuteries et deux épiceries dans les environs.
Son prix de vente est de 245 000 €.
Contactez Tony MIGAULT (tél : 06-73-54-47-45) pour toute question sur la maison.
Mentions légales
Terrain proposé par un partenaire foncier selon disponibilités et autorisation de publicité au prix de 80 000 €. Hors droit d'enregistrement et frais de notaire. Maison proposée, avec un contrat de construction de maison individuelle, dans le cadre de la loi du 19/12/1990, au prix de 165 000 € (Hors branchements et raccordements, papiers peints, peintures, revêtement de sol dans les chambres, qui sont chiffrés dans les travaux qui restent à charge du client. Tarif modifiable sans préavis). Étiquette énergie : A. Différents modèles disponibles pour ce terrain. Assurances et garanties du constructeur comprises (RC professionnelle, décennale, dommage ouvrage).Agence Logis du Marais Poitevin de Challans (85300)
- Téléphone :
- 02 51 55 17 74
- Adressse :
- 4 Place du Champ de Foire
85300 Challans, France
