Maison neuve à
Challans
(85300) Référence :
TM2318741_3
Prix du projet : Maison avec Terrain
prix 396 000 €
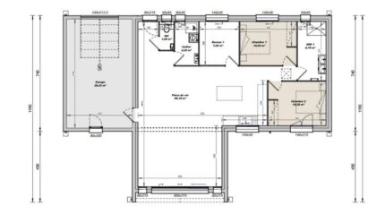
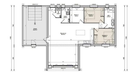
- 4 pièces
- 2 chambres
- Surface maison 95 m2
VENTE : maison T4 (95 m²) à Challans
IDÉALEMENT SITUÉE - MAISON 4 PIÈCES NEUVE
En vente à 17 km de la côte atlantique, LMP Constructeur Challans vous propose cette maison de 4 pièces de plain-pied de 95 m² et de 983 m² de terrain, idéalement située dans Challans (85300).
Conçue de plain-pied, elle compte deux chambres, une cuisine et une salle de bains. La maison est neuve.
Cette maison se situe dans un quartier convoité. Tous les types d'écoles se trouvent à moins de 5 minutes, tout comme deux crèches. Niveau transports, il y a la gare Challans dans un rayon de 5 min. On trouve deux bassins de natation, un tennis, des commerces, des boulangeries, deux supermarchés, deux épiceries et deux poissonneries dans les environs.
Elle est à vendre pour la somme de 396 000 €.
N'hésitez pas à prendre contact avec Tony MIGAULT (tél : 06-73-54-47-45) pour toute information sur la maison. Faites de vos projets immobiliers une réalité avec LMP Constructeur Challans.
Mentions légales
Terrain proposé par un partenaire foncier selon disponibilités et autorisation de publicité au prix de 171 000 €. Hors droit d'enregistrement et frais de notaire. Maison proposée, avec un contrat de construction de maison individuelle, dans le cadre de la loi du 19/12/1990, au prix de 225 000 € (Hors branchements et raccordements, papiers peints, peintures, revêtement de sol dans les chambres, qui sont chiffrés dans les travaux qui restent à charge du client. Tarif modifiable sans préavis). Étiquette énergie : A. Différents modèles disponibles pour ce terrain. Assurances et garanties du constructeur comprises (RC professionnelle, décennale, dommage ouvrage).Agence Logis du Marais Poitevin de Challans (85300)
- Téléphone :
- 02 51 55 17 74
- Adressse :
- 4 Place du Champ de Foire
85300 Challans, France
