Maison neuve à
Challans
(85300) Référence :
TM2313971_4
Prix du projet : Maison avec Terrain
prix 220 000 €
- 3 pièces
- 2 chambres
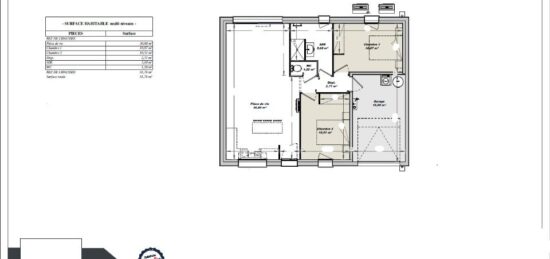
- Surface maison 61 m2
VENTE d'une maison F3 (61 m²) à Challans
IDÉALEMENT SITUÉE - MAISON 3 PIÈCES NEUVE
À 17 km de l'océan Atlantique, votre agence LMP Constructeur Challans est heureuse de vous proposer cette maison de 3 pièces de plain-pied de 61 m² en vente, idéalement située dans Challans (85300).
Son intérieur propose deux chambres, une cuisine et une salle de bains. La maison est neuve.
Le terrain de la propriété s'étend sur 480 m².
Cette maison est située dans un secteur convoité. Il y a des écoles (de la maternelle au lycée) à moins de 10 minutes, tout comme deux structures d'accueil pour les enfants en bas âge. Niveau transports en commun, on trouve la gare Challans dans un rayon de 1 km. Il y a deux bassins de natation, un tennis, des commerces, des boulangeries, deux supermarchés, un bureau de poste et deux poissonneries à quelques minutes de la maison.
Elle est à vendre pour la somme de 220 000 €.
Prenez contact avec Tony MIGAULT (06-73-54-47-45) pour toute question sur la maison et sur les démarches à suivre. Concrétisez vos projets immobiliers avec LMP Constructeur Challans.
Mentions légales
Terrain proposé par un partenaire foncier selon disponibilités et autorisation de publicité au prix de 93 000 €. Hors droit d'enregistrement et frais de notaire. Maison proposée, avec un contrat de construction de maison individuelle, dans le cadre de la loi du 19/12/1990, au prix de 127 000 € (Hors branchements et raccordements, papiers peints, peintures, revêtement de sol dans les chambres, qui sont chiffrés dans les travaux qui restent à charge du client. Tarif modifiable sans préavis). Étiquette énergie : A. Différents modèles disponibles pour ce terrain. Assurances et garanties du constructeur comprises (RC professionnelle, décennale, dommage ouvrage).Agence Logis du Marais Poitevin de Challans (85300)
- Téléphone :
- 02 51 55 17 74
- Adressse :
- 4 Place du Champ de Foire
85300 Challans, France
