Maison neuve à
Challans (85300) Référence : TM2306442_3

Prix du projet : Maison avec Terrain

prix 267 000 €

  • 4 pièces
  • 3 chambres
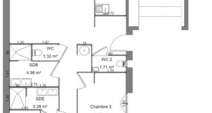
  • Surface maison 90 m2

VENTE : maison de 4 pièces (90 m²) à Challans
PROCHE CENTRE-VILLE - MAISON 4 PIÈCES NEUVE
À 17 km de l'océan Atlantique, votre agence LMP Constructeur Challans est ravie de vous proposer cette maison de 4 pièces de plain-pied de 90 m² proche du centre-ville de Challans (85300).
Son intérieur inclut trois chambres, une cuisine et deux salles de bains. Cette maison est neuve.
Le terrain de la propriété s'étend sur 349 m².
On trouve des établissements scolaires de tous types à moins de 10 minutes à pied, tout comme deux crèches. Niveau transports, il y a la gare Challans à quelques pas du bien. On trouve deux bassins de natation, un tennis, des commerces, des boulangeries, deux supermarchés, deux poissonneries et des boucheries-charcuteries dans les environs.
Son prix de vente est de 267 000 €.
Contactez Tony MIGAULT (06-73-54-47-45) pour plus de renseignements sur la maison et sur les modalités de vente. LMP Constructeur Challans est là pour vous accompagner à toutes les étapes de votre projet.

Mentions légales

Terrain proposé par un partenaire foncier selon disponibilités et autorisation de publicité au prix de 78 000 €. Hors droit d'enregistrement et frais de notaire. Maison proposée, avec un contrat de construction de maison individuelle, dans le cadre de la loi du 19/12/1990, au prix de 189 000 € (Hors branchements et raccordements, papiers peints, peintures, revêtement de sol dans les chambres, qui sont chiffrés dans les travaux qui restent à charge du client. Tarif modifiable sans préavis). Étiquette énergie : A. Différents modèles disponibles pour ce terrain. Assurances et garanties du constructeur comprises (RC professionnelle, décennale, dommage ouvrage).

Contactez l'agence de Challans

02 51 55 17 74

    * Champs obligatoires

    Vos informations sont traitées par HEXAOM et transmises à un conseiller commercial qui vous contactera afin de répondre à votre demande. Les plans et images présentés sur notre site sont la propriété d’HEXAOM et ne peuvent pas être reproduits sans son accord. Pour retrouver notre politique de protection des données personnelles et exercer vos droits conformément à la « loi informatique et liberté » cliquez-ici.