Maison neuve à
Challans
(85300) Référence :
TM2306442_2
Prix du projet : Maison avec Terrain
prix 205 000 €
- 3 pièces
- 2 chambres
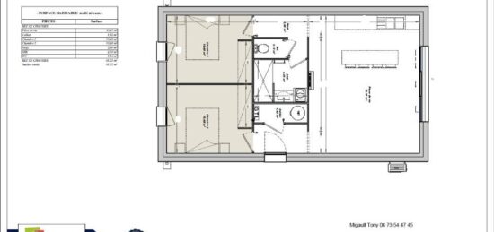
- Surface maison 61 m2
VENTE d'une maison de 3 pièces (61 m²) à Challans
PROCHE CENTRE-VILLE - MAISON 3 PIÈCES NEUVE
À vendre : à 17 km de l'océan Atlantique, LMP Constructeur Challans vous présente cette maison de 3 pièces de plain-pied de 61 m² et de 349 m² de terrain proche du centre-ville de Challans (85300). Conçue de plain-pied, elle compte deux chambres, une cuisine et une salle de bains.
Cette maison est neuve.
On trouve des établissements scolaires de tous types (de la maternelle au lycée) à moins de 10 minutes à pied, tout comme deux structures d'accueil pour la petite enfance. Niveau transports en commun, il y a la gare Challans juste à côté. On trouve deux bassins de natation, un tennis, des commerces, des boulangeries, deux supermarchés, un bureau de poste et deux épiceries à quelques minutes à peine.
Elle est proposée à l'achat pour 205 000 €.
Prenez contact avec notre agence (MIGAULT Tony : 06-73-54-47-45) pour toute information sur la maison ou sur les démarches à suivre.
Mentions légales
Terrain proposé par un partenaire foncier selon disponibilités et autorisation de publicité au prix de 78 000 €. Hors droit d'enregistrement et frais de notaire. Maison proposée, avec un contrat de construction de maison individuelle, dans le cadre de la loi du 19/12/1990, au prix de 127 000 € (Hors branchements et raccordements, papiers peints, peintures, revêtement de sol dans les chambres, qui sont chiffrés dans les travaux qui restent à charge du client. Tarif modifiable sans préavis). Étiquette énergie : A. Différents modèles disponibles pour ce terrain. Assurances et garanties du constructeur comprises (RC professionnelle, décennale, dommage ouvrage).Agence Logis du Marais Poitevin de Challans (85300)
- Téléphone :
- 02 51 55 17 74
- Adressse :
- 4 Place du Champ de Foire
85300 Challans, France
