Maison neuve à
Challans
(85300) Référence :
TM2306442_1
Prix du projet : Maison avec Terrain
prix 193 000 €
- 3 pièces
- 2 chambres
- Surface maison 61 m2
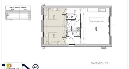
VENTE d'une maison T3 (61 m²) à Challans
PROCHE CENTRE-VILLE - MAISON 3 PIÈCES NEUVE
En vente : à 17 km de l'océan Atlantique, notre agence LMP Constructeur Challans est heureuse de vous proposer cette maison de 3 pièces de plain-pied de 61 m² et de 349 m² de terrain, proche du centre-ville de Challans (85300).
Conçue de plain-pied, elle comporte deux chambres, une cuisine et une salle de bains. Cette maison est neuve.
Des établissements scolaires (de la maternelle au lycée) se trouvent à moins de 10 minutes à pied, tout comme deux crèches. Côté transports en commun, il y a la gare Challans à proximité. On trouve deux bassins de natation, un tennis, des commerces, des boulangeries, deux supermarchés, deux épiceries et un bureau de poste dans les environs.
Son prix de vente est de 193 000 €.
Contactez Tony MIGAULT (06-73-54-47-45) pour tout renseignement sur la propriété ou sur les démarches à suivre.
Mentions légales
Terrain proposé par un partenaire foncier selon disponibilités et autorisation de publicité au prix de 78 000 €. Hors droit d'enregistrement et frais de notaire. Maison proposée, avec un contrat de construction de maison individuelle, dans le cadre de la loi du 19/12/1990, au prix de 115 000 € (Hors branchements et raccordements, papiers peints, peintures, revêtement de sol dans les chambres, qui sont chiffrés dans les travaux qui restent à charge du client. Tarif modifiable sans préavis). Étiquette énergie : A. Différents modèles disponibles pour ce terrain. Assurances et garanties du constructeur comprises (RC professionnelle, décennale, dommage ouvrage).Agence Logis du Marais Poitevin de Challans (85300)
- Téléphone :
- 02 51 55 17 74
- Adressse :
- 4 Place du Champ de Foire
85300 Challans, France
