Maison neuve à
Challans
(85300) Référence :
TM2306204_2
Prix du projet : Maison avec Terrain
prix 222 000 €
- 4 pièces
- 3 chambres
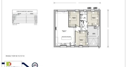
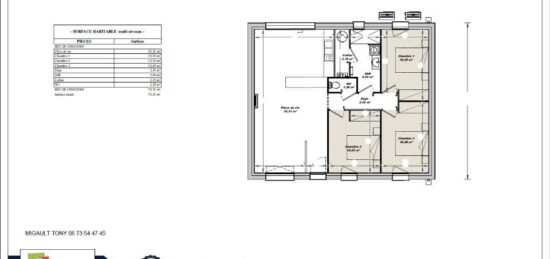
- Surface maison 75 m2
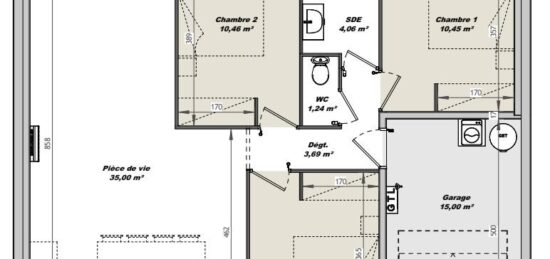
VENTE : maison de 4 pièces (75 m²) à Challans
IDÉALEMENT SITUÉE - MAISON 4 PIÈCES NEUVE
À vendre à 17 km de la côte atlantique, nous vous présentons, idéalement située dans Challans (85300), cette maison de 4 pièces de plain-pied de 75 m².
Conçue de plain-pied, elle offre trois chambres, une cuisine et une salle de bains. Cette maison est neuve.
Le terrain de la propriété s'étend sur 436 m².
Cette maison se trouve dans un secteur convoité. Il y a des établissements scolaires du primaire et du secondaire à moins de 10 minutes, tout comme deux structures d'accueil pour les tout-petits. Côté transports, on trouve la gare Challans juste à côté. Il y a deux bassins de natation, un tennis, des commerces, des boulangeries, deux supermarchés, deux épiceries et un bureau de poste dans les environs.
Elle est proposée à l'achat pour 222 000 €.
Contactez Tony MIGAULT (06-73-54-47-45) pour toute question sur la propriété, sur les modalités de vente ou sur les démarches à suivre. Donnez vie à vos projets immobiliers avec LMP Constructeur Challans.
Mentions légales
Terrain proposé par un partenaire foncier selon disponibilités et autorisation de publicité au prix de 77 000 €. Hors droit d'enregistrement et frais de notaire. Maison proposée, avec un contrat de construction de maison individuelle, dans le cadre de la loi du 19/12/1990, au prix de 145 000 € (Hors branchements et raccordements, papiers peints, peintures, revêtement de sol dans les chambres, qui sont chiffrés dans les travaux qui restent à charge du client. Tarif modifiable sans préavis). Étiquette énergie : A. Différents modèles disponibles pour ce terrain. Assurances et garanties du constructeur comprises (RC professionnelle, décennale, dommage ouvrage).Agence Logis du Marais Poitevin de Challans (85300)
- Téléphone :
- 02 51 55 17 74
- Adressse :
- 4 Place du Champ de Foire
85300 Challans, France
