Maison neuve à
Challans
(85300) Référence :
TM2304324_1
Prix du projet : Maison avec Terrain
prix 180 000 €
- 3 pièces
- 2 chambres
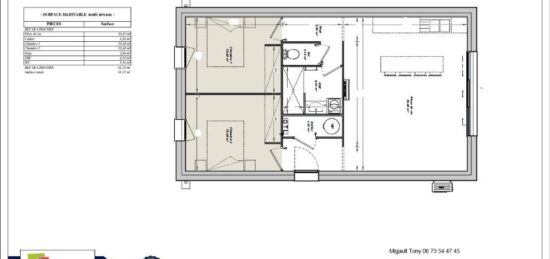
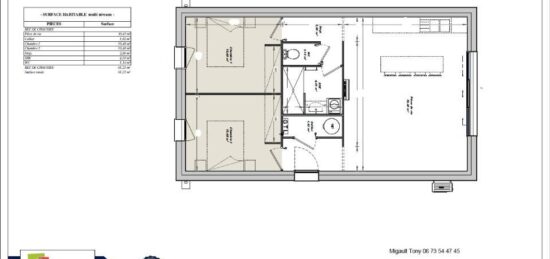
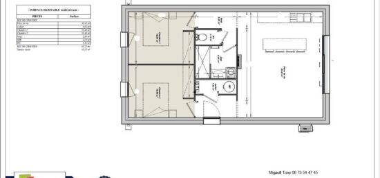
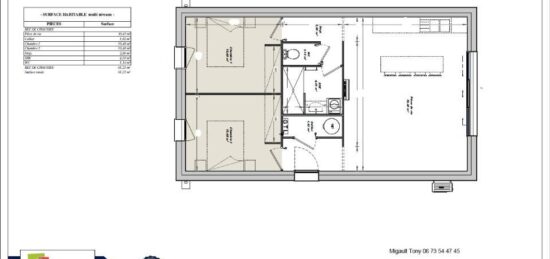
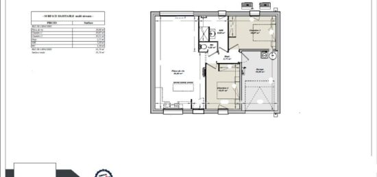
- Surface maison 61 m2
VENTE : maison de 3 pièces (61 m²) à Challans
IDÉALEMENT SITUÉE - MAISON 3 PIÈCES NEUVE
En vente à 17 km de l'océan Atlantique, nous vous présentons, idéalement située dans Challans (85300), cette maison de 3 pièces de plain-pied de 61 m². Elle inclut deux chambres, une cuisine et une salle de bains.
Le terrain de cette maison s'étend sur 305 m².
Cette maison est neuve.
La maison est située dans un secteur attractif. Tous les types d'établissements scolaires se trouvent à moins de 10 minutes, tout comme deux structures d'accueil pour la petite enfance. Côté transports, il y a la gare Challans à quelques pas du bien. On trouve deux bassins de natation, un tennis, des commerces, des boulangeries, deux supermarchés, un bureau de poste et deux épiceries dans les environs.
Elle est à vendre pour la somme de 180 000 €.
Contactez notre agence (Tony MIGAULT : 06-73-54-47-45) pour obtenir de plus amples renseignements sur le bien. LMP Constructeur Challans vous accompagne dans toutes vos démarches et dans tous vos projets immobiliers.
Mentions légales
Terrain proposé par un partenaire foncier selon disponibilités et autorisation de publicité au prix de 64 000 €. Hors droit d'enregistrement et frais de notaire. Maison proposée, avec un contrat de construction de maison individuelle, dans le cadre de la loi du 19/12/1990, au prix de 116 000 € (Hors branchements et raccordements, papiers peints, peintures, revêtement de sol dans les chambres, qui sont chiffrés dans les travaux qui restent à charge du client. Tarif modifiable sans préavis). Étiquette énergie : A. Différents modèles disponibles pour ce terrain. Assurances et garanties du constructeur comprises (RC professionnelle, décennale, dommage ouvrage).Agence Logis du Marais Poitevin de Challans (85300)
- Téléphone :
- 02 51 55 17 74
- Adressse :
- 4 Place du Champ de Foire
85300 Challans, France
