Maison neuve à
Chaillé-les-Marais
(85450) Référence :
JG2370442_3
Prix du projet : Maison avec Terrain
prix 365 000 €
- 8 pièces
- 3 chambres
- Surface maison 119 m2
VENTE : maison de 8 pièces (119 m²) à Chaillé-les-Marais
MAISON 8 PIÈCES NEUVE - PROCHE DE LA ROCHELLE ET LUCON
À vendre : à 14 km de l'océan Atlantique et à 28 km de La Rochelle, votre agence LMP Constructeur Angles est heureuse de vous proposer cette maison de 8 pièces de 119 m² et de 1 317 m² de terrain à Chaillé-les-Marais (85450).
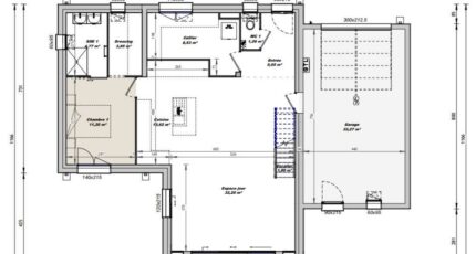
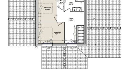
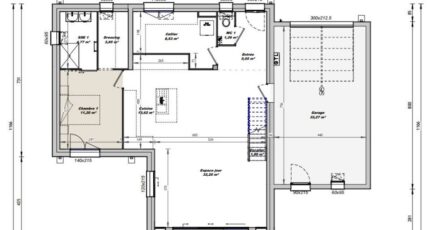
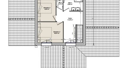
Cette maison possède 2 niveaux. Son intérieur dispose de trois chambres dont un esuite parentale en rdc , d'une cuisine avec cellier et de deux chambres à l etage, une salle de bains et un garage.
Il y a une école primaire dans le quartier. L'autoroute A83 et la nationale N11 sont accessibles à moins de 20 km. On trouve un tennis, un bassin de natation, une boulangerie, un bureau de poste et une supérette à quelques minutes à peine.
Son prix de vente est de 365 000 €.
Prenez contact avec notre constructeur (Jessica GAUTHREAU : 07-49-20-70-93) pour obtenir de plus amples informations sur la maison, sur les modalités de vente ou sur les démarches à suivre. LMP Constructeur Angles est là pour vous accompagner à toutes les étapes de l'achat.
lmp connstructeur 24 rue nationale 85750 angles
Annonce proposée par un Agent Commercial Partenaire.
Mentions légales
Terrain proposé par un partenaire foncier selon disponibilités et autorisation de publicité au prix de 29 900 €. Hors droit d'enregistrement et frais de notaire. Terrain + Maison proposés au prix de 335 100 € (Hors branchements et raccordements, papiers peints, peintures, revêtement de sol dans les chambres. Tarif modifiable sans préavis). Etiquette énergie : A. Différents modèles disponibles pour ce terrain. Assurances et garanties du constructeur (RC professionnelle, décennale, dommage ouvrage, garantie de remboursement de l'acompte, livraison à prix et délai convenu) : https://www.lmp-constructeur.com/mentions-legales/.Agence Logis du Marais Poitevin de Angles (85750)
- Téléphone :
- 02 51 27 43 52
- Adressse :
- 24 rue Nationale
85750 Angles, France
