Maison neuve à
Bretignolles-sur-Mer
(85470) Référence :
NR2382783_2
Prix du projet : Maison avec Terrain
prix 224 900 €
- 2 pièces
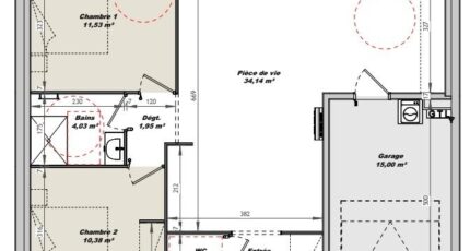
- 2 chambres
- Surface maison 61 m2
VENTE d'une maison F2 (61 m²) à Bretignolles-sur-Mer
MAISON 2 PIÈCES NEUVE
À 1 km de la côte atlantique, venez découvrir cette maison de 2 pièces de plain-pied de 61 m² à vendre à Bretignolles-sur-Mer (85470). Conçue de plain-pied, elle inclut deux chambres, une cuisine et une salle de bains.
Le terrain de cette maison est de 349 m².
Cette maison est neuve.
L'École Primaire Privée Notre Dame et l'École Primaire Publique Benjamin Rabier sont implantées à moins de 10 minutes à pied, tout comme une structure d'accueil pour les tout-petits. Il y a deux tennis, des commerces, des boulangeries, une boucherie-charcuterie, une poissonnerie et un bureau de poste à quelques minutes à peine. Enfin, le marché Place du marché anime le quartier.
Elle est proposée à l'achat pour 224 900 €.
Contactez notre agence (Nicolas RISSELIN : 06-80-33-03-82) pour obtenir de plus amples informations sur la maison. LMP Constructeur Saint-Gilles-Croix-de-Vie vous accompagne à toutes les étapes de l'achat et dans tous vos projets immobiliers.
Mentions légales
Terrain proposé par un partenaire foncier selon disponibilités et autorisation de publicité au prix de 89 900 €. Hors droit d'enregistrement et frais de notaire. Terrain + Maison proposés au prix de 135 000 € (Hors branchements et raccordements, papiers peints, peintures, revêtement de sol dans les chambres. Tarif modifiable sans préavis). Etiquette énergie : A. Différents modèles disponibles pour ce terrain. Assurances et garanties du constructeur (RC professionnelle, décennale, dommage ouvrage, garantie de remboursement de l'acompte, livraison à prix et délai convenu) : https://www.lmp-constructeur.com/mentions-legales/.Agence Logis du Marais Poitevin de Saint-Gilles-Croix-de-Vie (85800)
- Téléphone :
- 02 51 55 34 29
- Adressse :
- 5 rue Gautté
85800 Saint-Gilles-Croix-de-Vie, France
