Maison neuve à
Bretignolles-sur-Mer
(85470) Référence :
NR2382783_1
Prix du projet : Maison avec Terrain
prix 192 900 €
- 2 pièces
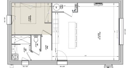
- 1 chambre
- Surface maison 50 m2
Maison F2 (50 m²) à vendre à Bretignolles-sur-Mer
MAISON 2 PIÈCES NEUVE
À vendre : située sur le littoral atlantique, nous sommes heureux de vous proposer à Bretignolles-sur-Mer (85470), cette maison de 2 pièces de plain-pied de 50 m² et de 349 m² de terrain.
Elle offre une chambre, une cuisine et une salle de bains. Cette maison est neuve.
L'École Primaire Privée Notre Dame et l'École Primaire Publique Benjamin Rabier sont implantées à moins de 10 minutes à pied, tout comme une structure d'accueil pour les enfants en bas âge. Il y a deux tennis, des commerces, des boulangeries, une boucherie-charcuterie, un bureau de poste et une poissonnerie dans les environs. Le marché Place du marché anime les environs.
Elle est proposée à l'achat pour 192 900 €.
N'hésitez pas à prendre contact avec Nicolas RISSELIN (tél : 06-80-33-03-82) pour toute information sur la maison. LMP Constructeur Saint-Gilles-Croix-de-Vie vous accompagne dans tous vos projets immobiliers et dans toutes vos démarches.
Mentions légales
Terrain proposé par un partenaire foncier selon disponibilités et autorisation de publicité au prix de 89 900 €. Hors droit d'enregistrement et frais de notaire. Terrain + Maison proposés au prix de 103 000 € (Hors branchements et raccordements, papiers peints, peintures, revêtement de sol dans les chambres. Tarif modifiable sans préavis). Etiquette énergie : A. Différents modèles disponibles pour ce terrain. Assurances et garanties du constructeur (RC professionnelle, décennale, dommage ouvrage, garantie de remboursement de l'acompte, livraison à prix et délai convenu) : https://www.lmp-constructeur.com/mentions-legales/.Agence Logis du Marais Poitevin de Saint-Gilles-Croix-de-Vie (85800)
- Téléphone :
- 02 51 55 34 29
- Adressse :
- 5 rue Gautté
85800 Saint-Gilles-Croix-de-Vie, France
