Maison neuve à
Bretignolles-sur-Mer
(85470) Référence :
NR2235033_1
Prix du projet : Maison avec Terrain
prix 209 900 €
- 2 pièces
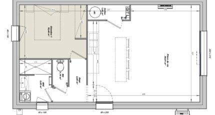
- 1 chambre
- Surface maison 50 m2
Maison F2 (50 m²) en vente à Bretignolles-sur-Mer
EMPLACEMENT PRIVILÉGIÉ - MAISON 2 PIÈCES NEUVE
À vendre : sur le littoral atlantique, bénéficiant d'un emplacement privilégié dans Bretignolles-sur-Mer (85470), LMP Constructeur Saint-Gilles-Croix-de-Vie vous propose cette maison de 2 pièces de plain-pied de 50 m² et de 251 m² de terrain. Conçue de plain-pied, elle inclut une chambre, une cuisine et une salle de bains.
La maison est neuve.
La maison est située dans un secteur prisé. On trouve l'École Primaire Privée Notre Dame et l'École Primaire Publique Benjamin Rabier à moins de 10 minutes à pied et une structure d'accueil pour la petite enfance. Il y a deux tennis, des commerces, des boulangeries, une poissonnerie, un bureau de poste et une boucherie-charcuterie à quelques minutes à peine. Le marché Place du marché anime les environs.
Elle est proposée à l'achat pour 209 900 €.
Contactez Nicolas RISSELIN (06-80-33-03-82) pour tout renseignement sur la maison ou sur les modalités de vente. LMP Constructeur Saint-Gilles-Croix-de-Vie vous accompagne dans tous vos projets immobiliers et à toutes les étapes de votre projet.
Mentions légales
Terrain proposé par un partenaire foncier selon disponibilités et autorisation de publicité au prix de 108 000 €. Hors droit d'enregistrement et frais de notaire. Maison proposée, avec un contrat de construction de maison individuelle, dans le cadre de la loi du 19/12/1990, au prix de 101 900 € (Hors branchements et raccordements, papiers peints, peintures, revêtement de sol dans les chambres, qui sont chiffrés dans les travaux qui restent à charge du client. Tarif modifiable sans préavis). Étiquette énergie : A. Différents modèles disponibles pour ce terrain. Assurances et garanties du constructeur comprises (RC professionnelle, décennale, dommage ouvrage).Agence Logis du Marais Poitevin de Saint-Gilles-Croix-de-Vie (85800)
- Téléphone :
- 02 51 55 34 29
- Adressse :
- 5 rue Gautté
85800 Saint-Gilles-Croix-de-Vie, France
