Maison neuve à
Brem-sur-Mer
(85470) Référence :
NR2391054_2
Prix du projet : Maison avec Terrain
prix 215 900 €
- 2 pièces
- 2 chambres
- Surface maison 61 m2
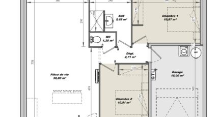
VENTE d'une maison T2 (61 m²) à Brem-sur-Mer
MAISON 2 PIÈCES NEUVE - PROCHE DE LA ROCHE-SUR-YON
À 4 km de la côte atlantique et à 31 km de La Roche-sur-Yon, nous sommes heureux de vous présenter cette maison de 2 pièces de plain-pied de 61 m² et de 389 m² de terrain à vendre à Brem-sur-Mer (85470).
Elle dispose de deux chambres, d'une cuisine et d'une salle de bains. La maison est neuve.
L'École Primaire Privée Notre Dame de l'Espérance et l'École Primaire Publique Sol et Vent sont implantées à moins de 10 minutes à pied. Côté transports en commun, il y a la gare Olonne-sur-Mer à moins de 10 minutes en voiture. On trouve un tennis, des commerces, une boulangerie, un supermarché, une épicerie et une boucherie-charcuterie dans les environs. Le marché Rue de l'Océan anime le quartier.
Elle est à vendre pour la somme de 215 900 €.
N'hésitez pas à prendre contact avec Nicolas RISSELIN (tél : 06-80-33-03-82) pour obtenir de plus amples renseignements sur cette maison, sur les démarches à suivre ou sur les modalités de vente. LMP Constructeur Saint-Gilles-Croix-de-Vie est là pour vous accompagner dans tous vos projets immobiliers.
Mentions légales
Terrain proposé par un partenaire foncier selon disponibilités et autorisation de publicité au prix de 84 900 €. Hors droit d'enregistrement et frais de notaire. Terrain + Maison proposés au prix de 215 900 € (Hors branchements et raccordements, papiers peints, peintures, revêtement de sol dans les chambres. Tarif modifiable sans préavis). Etiquette énergie : A. Différents modèles disponibles pour ce terrain. Assurances et garanties du constructeur (RC professionnelle, décennale, dommage ouvrage, garantie de remboursement de l'acompte, livraison à prix et délai convenu) : https://www.lmp-constructeur.com/mentions-legales/.Agence Logis du Marais Poitevin de Saint-Gilles-Croix-de-Vie (85800)
- Téléphone :
- 02 51 55 34 29
- Adressse :
- 5 rue Gautté
85800 Saint-Gilles-Croix-de-Vie, France
