Maison neuve à
Brem-sur-Mer
(85470) Référence :
NR2255023_6
Prix du projet : Maison avec Terrain
prix 219 900 €
- 4 pièces
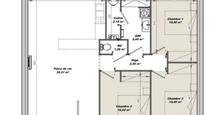
- 3 chambres
- Surface maison 61 m2
VENTE d'une maison de 4 pièces (61 m²) à Brem-sur-Mer
EMPLACEMENT PRIVILÉGIÉ - MAISON 4 PIÈCES NEUVE
En vente : localisée sur le littoral atlantique et à deux pas de La Roche-sur-Yon, LMP Constructeur Saint-Gilles-Croix-de-Vie vous propose cette maison de 4 pièces de plain-pied de 61 m² et de 232 m² de terrain, bénéficiant d'un emplacement d'exception dans Brem-sur-Mer (85470).
Conçue de plain-pied, elle est composée de trois chambres, d'une cuisine et d'une salle de bains. Cette maison est neuve.
Le bien est situé dans un secteur convoité. L'École Primaire Privée Notre Dame de l'Espérance et l'École Primaire Publique Sol et Vent sont implantées à moins de 10 minutes à pied. Niveau transports en commun, il y a la gare Olonne-sur-Mer à moins de 10 minutes en voiture. On trouve un tennis, des commerces, une boulangerie, un supermarché, une boucherie-charcuterie et une épicerie à proximité. Enfin, le marché Rue de l'Océan anime les environs.
Il est à vendre pour la somme de 219 900 €.
N'hésitez pas à prendre contact avec Nicolas RISSELIN (06-80-33-03-82) pour toute question sur la maison, sur les démarches à suivre ou sur les modalités de vente. LMP Constructeur Saint-Gilles-Croix-de-Vie est là pour vous accompagner à toutes les étapes de votre projet.
Mentions légales
Terrain proposé par un partenaire foncier selon disponibilités et autorisation de publicité au prix de 79 999 €. Hors droit d'enregistrement et frais de notaire. Maison proposée, avec un contrat de construction de maison individuelle, dans le cadre de la loi du 19/12/1990, au prix de 139 901 € (Hors branchements et raccordements, papiers peints, peintures, revêtement de sol dans les chambres, qui sont chiffrés dans les travaux qui restent à charge du client. Tarif modifiable sans préavis). Étiquette énergie : A. Différents modèles disponibles pour ce terrain. Assurances et garanties du constructeur comprises (RC professionnelle, décennale, dommage ouvrage).Agence Logis du Marais Poitevin de Saint-Gilles-Croix-de-Vie (85800)
- Téléphone :
- 02 51 55 34 29
- Adressse :
- 5 rue Gautté
85800 Saint-Gilles-Croix-de-Vie, France
