Maison neuve à
Angles
(85750) Référence :
JG2345539_3
Prix du projet : Maison avec Terrain
prix 351 000 €
- 8 pièces
- 3 chambres
- Surface maison 119 m2
VENTE : maison de 8 pièces (119 m²) à Angles
MAISON 8 PIÈCES NEUVE - PROCHE DE LA TRANCHE SUR MER
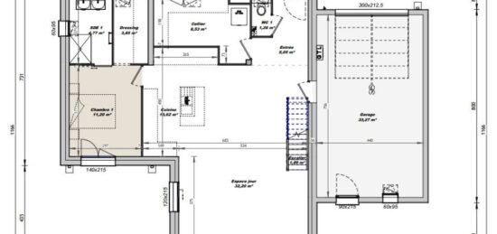
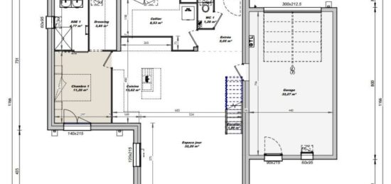
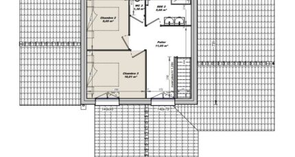
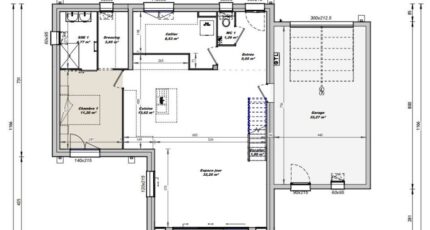
En vente sur le littoral atlantique et à 30 MIN DE LA ROCHE SUR YON ET DE LUCON nous vous présentons cette maison de 8 pièces de 119 m² à Angles (85750). Son intérieur comporte trois chambres dont une suite parentel en rdc , une cuisine avec celleir , a l etage deux chambres , une salle d eau et un grand garage .
Le terrain de la propriété s'étend sur 517 m².
Il s'agit d'une maison de 2 niveaux. e.
L'École Primaire Privée Sainte Thérèse et l'École Primaire Publique du Dauphin Bleu sont implantées à moins de 10 minutes à pied. On trouve un tennis, trois commerces, trois boulangeries, un supermarché, une boucherie-charcuterie et un bureau de poste à proximité. Le marché Rue nationale anime le quartier.
Elle est à vendre pour la somme de 351 000 €.
Contactez notre agence (GAUTHREAU Jessica : 07-49-20-70-93) pour plus de renseignements sur la maison, sur les modalités de vente et sur les démarches à suivre. LMP Constructeur Angles est là pour vous accompagner à toutes les étapes de votre projet.
Annonce proposée par un Agent Commercial Partenaire.
Mentions légales
Terrain proposé par un partenaire foncier selon disponibilités et autorisation de publicité au prix de 90 000 €. Hors droit d'enregistrement et frais de notaire. Maison proposée, avec un contrat de construction de maison individuelle, dans le cadre de la loi du 19/12/1990, au prix de 261 000 € (Hors branchements et raccordements, papiers peints, peintures, revêtement de sol dans les chambres, qui sont chiffrés dans les travaux qui restent à charge du client. Tarif modifiable sans préavis). Étiquette énergie : A. Différents modèles disponibles pour ce terrain. Assurances et garanties du constructeur comprises (RC professionnelle, décennale, dommage ouvrage).Agence Logis du Marais Poitevin de Angles (85750)
- Téléphone :
- 02 51 27 43 52
- Adressse :
- 24 rue Nationale
85750 Angles, France
